Стандартные размеры межкомнатных дверей
Стандарт шириныСтандарт высоты
Стандарт толщины
Классификация дверей
Размеры коробки для дверей
Двери со скрытой коробкой
Размеры проема. Как не ошибиться в измерениях
Ремонт в доме или квартире всегда связан с глобальными изменениями. Нередко завершающим этапом в реконструкции помещения является установка межкомнатных дверей. Они всегда привлекают к себе внимание, поэтому к их прочности и внешнему виду выдвигаются особые требования.
Чтобы не ошибиться при покупке дверей, очень важно разбираться в стандартных размерах межкомнатных дверей, предусмотренных ГОСТ. Они отличаются, в зависимости от назначения помещения. Перед покупкой дверей измерить параметры приглянувшейся модели можно и самостоятельно.
Большинство производителей руководствуются стандартными, типовыми размерами, установленными еще в Советском Союзе. Некоторые предлагают необычные, индивидуальные решения, но таких немного.
Соотношения между полотном и дверной коробкой определяются стандартами СНиП и DIN.
| Дверь (ширина*высота) | Ширина проема | Высота проема |
| 600*2000 | 700-740 | 2060-2080 |
| 700*2000 | 800-840 | 2060-2080 |
| 800*2000 | 900-940 | 2060-2080 |
| 900*2000 | 1000-1040 | 2060-2080 |
| 600+600*2000 | 1340-1400 | 2060-2080 |
СНиП определяет такие стандарты:
| Дверь (ширина*высота) | Ширина проема | Высота проема |
| 600*2000 | 680-710 | 2050-2070 |
| 700*2000 | 780-810 | 2050-2070 |
| 800*2000 | 880-910 | 2050-2070 |
| 900*2000 | 980-1010 | 2050-2070 |
| 600*1900 | 680-710 | 1950-1970 |
| 550*1900 | 630-660 | 1950-1970 |
| 600+600*2000 | 1280-1310 | 2050-2070 |
Стандарт ширины
Когда речь заходит о выборе межкомнатных дверей, самым первым параметром, на который обращают внимание, является ширина дверного полотна.
- жилые помещения – 800 мм;
- кухни – 700 мм;
- санузлы – 600 мм.
Современная продукция, представленная на рынке, может немного отличаться по габаритам от этих нормативов. Она изменяется, подстраиваясь под запросы пользователей. Потому сегодня часто можно встретить более широкий диапазон размеров:
- для жилых помещений (например, спален) – от 800 до 900 мм;
- в кухню – 700 мм;
- для санузлов – 500-600 мм.
Некоторые потребители, стремясь украсить гостиную или сделать оригинальным выход на крыльцо, выбирают двустворчатые модели. Обычно для них используются два полотна стандартных размеров. Они могут быть одинаковыми или разными по габаритам. Среди двустворчатых дверей в гостиную можно встретить узкие варианты 400 и 400 и 400 плюс 800.
Стандарт высоты
На рынке распространены модели, сконструированные по отечественным нормативам.
Стандарт толщины
В основном, толщина типовых изделий колеблется в пределах 30-40 мм. Этот показатель в последнее время немного расширился, и сейчас можно найти модели 35, 40 мм. Встречаются и промежуточные значения толщины – 36, 38 мм.
Этот показатель отличается, в зависимости от используемого в производстве двери материала. Если это массив древесины, он редко бывает тоньше 40 мм, иногда даже достигает 50. МДФ-перегородки сдвижного типа, наоборот, тонкие – встречаются модели и по 20 мм. Распространенные в последнее время стеклянные двери тоже тонкие – от 8 мм.
Классификация дверей
Межкомнатные двери для квартир и домов делятся на несколько видов, в зависимости от разных показателей. Они могут наружными или внутренними, одно-, двухпольными, полуторными.
Их классифицируют по:
Перед покупкой новой двери меряйте проем с учетом того, что его размер должен на 30 мм превышать габариты коробки сверху и по ширине. Зазор необходим для того, чтобы изделие можно было отрегулировать клиньями и зафиксировать монтажной пеной. Это актуально только для проемов с правильными размерами.
- способу открывания – одно-и двухпольные распашные, складные, раздвижные пенальные, раздвижные открытые, качающиеся;
- наполненности полотна – застекленные и глухие;
- предназначению – для жилых домов и квартир, общественных зданий, специализированные;
- материалу – из дерева, стекла, металла, ПВХ, комбинированные.
Кроме того, выделяют еще несколько типов межкомнатных дверей:
- Под покраску. Они бывают элитными и бюджетными. Их можно окрашивать и стилизовать под расцветки интерьера. Такие модели продаются уже грунтованными, готовыми к обработке.
- Ламинированные. Ламинируются устойчивой пленкой.
Так, можно имитировать любые покрытия. - Шпонированные. Делаются из каркасных МДФ с наполнителями. Поверх наносятся вставки из ценных пород древесины, которые потом лакируют.
- Из массива дерева. Это дорогие, натуральные модели.
- Стеклянные. Тоже дорогие, обычно дизайнерские изделия, которые часто устанавливают в санузлах, душевых.
Отличный выбор для оформления выхода на крыльцо или террасу либо помещения с повышенной влажностью – металлопластиковые двери.
Размеры коробки для дверей
Перед установкой дверной коробки нужно тщательно рассчитать уровень чистового пола – еще до того, как он будет монтироваться. Если дверь будет сильно цеплять пол, исправить эту ошибку самостоятельно, без вмешательства специалиста, сложно. Не каждая модель подвергается подобной корректировке. Поэтому просчетам нужно уделить максимум внимания.
Коробка предназначена для фиксации дверного полотна. Она имеет форму буквы П. Для ее производства используются бруски дерева, размером 1,5 – 4 см в ширину.
Толщина всегда равна толщине стены или перегородки. Для кирпичных это 7,5 см, для деревянных – около 10.
Стандартные размеры коробок, которые считаются оптимальными и позволяют добиться наилучшей фиксации – 3 – 3,5 см в ширину.
Двери со скрытой коробкой
Такие модели удобнее, но дороже типовых, и отличаются по размерам. Габариты дверей с коробкой скрытого типа должны четко соответствовать требованиям изготовителя. Стена – только прямая по вертикали, допустимое отклонение по высоте – не больше 1 мм. Толщина – не больше 80 мм.
Самый лучший показатель ширины монтажного зазора – 17-20 мм (+- 10 мм). Идеальный зазор под полотном – 4 мм.
Размеры проема. Как не ошибиться в измерениях
Размеры проемов тоже соответствуют стандартам, но иногда делаются и без соблюдения нормативов. В высоту они составляют примерно 1940 – 2050 мм, в ширину – 630 – 1600 мм. Здесь все зависит от назначения помещения.
Алгоритм измерения дверного проема прост:
- снимается старое полотно и коробка;
- счищается замазка, до базовой стены;
- ширина замеряется снизу, сверху и посредине;
- перед измерением высоты нужно определить уровень базового пола, а потом мерять;
- потом можно переходить к замерам толщины.

Старайтесь не направлять рулетку по диагонали. Лучше держать ее горизонтально или вертикально.
Стандартная ширина и толщина дверной коробки межкомнатной двери
Ремонт, особенно капитальный, сложный процесс. Необходимо заранее продумать многие моменты, чтобы потом не пришлось переделывать, подгонять. Одним из важных элементов при монтаже дверного блока квартиры, является ширина дверной коробки межкомнатной двери. Для этого, чтобы дверь установить, нужно подготовить нужных размеров проем в стене. Остановимся на вопросе, как правильно рассчитать ширину проема, коробки и дверного полотна. Это важно, с точки зрения нормального функционирования двери в целом.
Схема с размерами дверной коробки межкомнатной двери
Вернуться к оглавлениюСодержание материала
Основные параметры дверного блока
Большинство производителей при серийном производстве двери, коробки, наличников ориентируются на принятые в данной стране стандарты. Они отражены в ГОСТах (ГОСТ 6629-88) и строительных нормах и правилах (СНиП).
Среди многообразия проектных решений, далеко не всегда можно выдерживаются стандартные размеры толщины стен, особенно это характерно для монолитно-каркасного строительства. При модной сейчас свободной планировке, заказчик сам выбирает, какую дверь, соответственно ширину проема, он хочет сделать.
В этом случае, нужно быть готовым к тому, что если выбранная ширина не соответствует нормативам, дверной блок придется заказывать индивидуально. Естественным стоить будет он дороже, сужается выбор готовых дверных блоков.
Чертеж и эскиз дверной коробки
Проблема нестандартных проемов часто возникает при реконструкции старых домов, особенно с большой высотой потолков, к примеру, в «сталинках». Необходимо будет либо подгонять проем до стандартов, либо тоже заказывать двери индивидуально.
Вернуться к оглавлениюСтандартная ширина проема, коробки, дверного полотна
Несведущие люди часто путают понятия «ширина дверного проема» и «ширина коробки».
На этот момент нужно обратить внимание, так как это может привести к тому, что придется менять приобретенный комплект дверного блока.
Таблица размеров дверного полотна
Основные термины и обозначения:
Проем.
- Ширина — расстояние между боковинами прорезанного в стене отверстия для установки коробки.
- Высота — измеряется от пола до окончания этого проема.
- Глубина — толщина стены в проеме.
Коробка.
Представляет собой рамочную конструкцию, в которую монтируется дверь.
- Ширина — расстояние между стойками.
- Высота — длина стоек.
- Глубина — ширина бруса стоек.
Дверное полотно.
Вернуться к оглавлениюСтандартное полотно имеет прямоугольную форму. Соответственно размеры прямоугольника и будут шириной и высотой, а глубина толщиной двери.
Нормативные размеры
Существует несколько стандартов, которых стараются придерживаться строители. При их соблюдении проблем с установкой дверного блока не возникает.
Стандартные размеры дверного полотна
Основные нормативы:
- Ширина дверного проема должна быть на 70 мм больше ширины полотна дверей. Это нужно для того, чтобы оставалось пространство для установки дверных полотен и их функционирования: 20 мм со стороны петель, 40 мм с открывающейся стороны.
Схема конструкции коробки и дверного полотна
- Зазоры по периметру от дверной коробки до монтажных размеров проема должно составлять от 50 мм до 100 мм (для больших размеров дверей). Это так называемые монтажные зазоры, которые дают возможность правильно установить и выровнять дверную коробку. Сюда входит и толщина короба, стандартная 25 мм, если эта величина больше, то минимальный монтажный зазор должен составлять 100 мм.
Чертеж дверной коробки с зазорами
При монтаже короба его выставляют по уровню и заклинивают с помощью распорок из щепы бруса. Затем щель запенивают. Вовнутрь коробки тоже ставят распорки, так как пена, расширяясь, может выдавить стойки и перемычки.
- Определяя высоту короба, необходимо учитывать порог, в этом случае коробка должна быть выше на 80 мм. Без него — на 50 мм. Дверь в этом случае на 25 мм должна быть установлена выше на 25 мм от пола и горизонтальной верхней планки короба. Стандартная высота дверного полотна 2 тыс. мм, 1900 мм.
Основой для расчета станет дверное полотно. Стандартная ширина размера дверей: 600; 700; 800; 900 мм.
Приведем пример расчетов короба:
Дверное полотно 80 см / 800 мм по ширине и 200 см / 2 тыс. мм по высоте.
Ширина дверной коробки: 800 + 70 = 870 мм
Высота: 2000 + 80 / 50 = 2080 /2050 мм
Воспользовавшись таким несложным расчетом, вы без труда получите правильные размеры всех составляющих дверного блока. Такой несложной формулой пользуются при расчете и нестандартных размеров полотен.
Таблица типовых размеров дверных проемов
При расчете металлической входной двери используют те же правила, только минимальное расстояние от короба до проема должно составлять не менее от 150 до 200 мм, учитывая ширину коробки.
Эти же параметры рекомендованы для установки двухстворчатых дверей. При монтаже тяжелых бронированных дверей приходится усиливать проем металлом. Расчет в этом случае должен быть особенно тщательным.
Проект и чертеж с размерами двухстворчатых дверей
Отдельно стоит остановиться на деревянных полотнах, стандартных и изготовленных по индивидуальному заказу. Большая часть дверных блоков из массива имеют более толстые стенки короба. Особенно это касается широких дверей на 800; 900 мм, двустворчатых конструкций. Мастера изготавливают массивные коробки, чтобы усилить каркас. К тому же такой короб гармонично сочетается с тяжелым деревянным массивом. Этот момент следует учитывать при расчете дверного проема.
Вернуться к оглавлениюКак поступить если ширина короба не соответствует габаритам проема
Когда проем меньше нужных габаритных размеров, то в этом случае его просто расширяют.
В зависимости от материала стен используют разные методы:
- В бетоне сначала проделывают перфоратором отверстия по периметру, потом намечают деформационный шов и выбивают часть стены.
процесс расширения дверного проема
- Для того чтобы демонтировать часть кирпичной кладки лучше установить страховочные распорки из дерева, чтобы кирпич не начал сыпаться. Выбить аккуратно часть кирпичной кладки. Затем переложить ее на цементный раствор и отштукатурить.
- Если стена смонтирована из гипсокартона на профиль, то убирают одну из стоечных планок, предварительно подрезав плиту ГКЛ. Устанавливают новую стойку по нужным размерам и снова зашивают гипсом.
- Проще всего со стеной из гипсовой плиты. Ее просто подрезают и убирают часть.
Смотрите в видео: правила замера дверных проемов перед покупкой межкомнатных дверей.
В том случае, когда проем больше, его наращивают.
Проще всего это сделать при помощи гипсокартона, установленного на перегородочный профиль. Дополнительно периметр часто усиливают брусом. Нужно отметить, что ширина дверных коробок межкомнатных дверей, соблюдения правильных монтажных зазоров, имеет весомое значение при установке дверного блока.Стандартная ширина коробки межкомнатной двери по ГОСТ
Во время капитального ремонта каждый домовладелец неизбежно столкнется с вопросом выбора межкомнатных дверей. Подобрать оптимальный вариант дизайна дверного полотна, которое соответствует интерьеру комнаты не сложно – на рынке много интересных предложений от производителей. Когда выбирается межкомнатная дверь внимание надо обращать на размеры дверного полотна вместе с коробкой. В качестве ориентира следует использовать стандарт по ГОСТу, который существенно упрощает и выбор конструкции, и ее последующий монтаж.
Стандартные размеры
Стандартные размеры коробок межкомнатных дверей: ширина, высота и толщина
Стандарт ГОСТ строго определяет размеры, которым должна соответствовать дверная коробка.
Размеры могут варьироваться в зависимости от функционального назначения помещения, для которого подбирается межкомнатная дверь.
- Ширина стандартной коробки межкомнатной двери для жилых комнат составляет 80 см. При этом стандартная толщина такого дверного проема, в который вставляется коробка, составляет от 7 до 20 см (в зависимости от типа материала из которого построен дом).
- Ширина дверной коробки межкомнатной двери для санузла составляет 60 см. При этом стандартная высота дверного проема составляет от 190 до 200 см.
- Стандартная ширина современной межкомнатной двери для кухни составляет 70 см, а толщина дверного проема в этом случае составляет 7 см. Высота проема, в который вставляется дверная коробка, также стандартная и она составляет 200 см.
Этот стандарт является универсальным. Эти размеры и учитываются дизайнерами при выборе дверных конструкций разного типа, в том числе, если планируется межкомнатная дверь не распашного, а раздвижного типа.
Размеры межкомнатных дверей с коробкой: ширина и высота для гостиной
Гостиная – это визитная карточка дома, поэтому межкомнатная дверь, предназначенная для этой комнаты, выбирается особенно тщательно. Как правило, размеры дверного проема, отвечающие стандартам, в эту комнату немного шире от проемов в другие помещения дома. Такой же стандарт используется и при строительстве многоквартирных домов. Как правило, высота такого проема составляет от 201 до 205 см с незначительными возможными отклонениями. Ширина, которой должна соответствовать коробка, варьируется в пределах от 128 см до 160 см. В большинстве случаев для обустройства такого дверного проема используется двустворчатая межкомнатная дверь, ширина каждой створки которой составляет 60 см. Во время выбора размера створок учитывается ширина коробки и индивидуальные предпочтения заказчика. Например, межкомнатная дверь может состоять из двух автономных створок, размеры которых совершенно одинаковые, например 60 см.
А можно заказать и такие варианты, в которых створки двери разных размеров (60 см и 80 см). Стоит отметить, что такая ширина блоков отвечает стандартам.
Дверная коробка в гостиную или в любую другую комнату должна быть немного меньше от проема, в который она будет монтироваться. Если ширина проема стандартная, то в этом случае дверная коробка на 10-15 мм будет меньше от стен проема. Это необходимо для выполнения качественного монтажа двери. Стоит отметить, что независимо от материала, из которого непосредственно изготовлена дверная конструкция (массив, МДФ), дверная коробка, а именно ее параметры, остаются в тех пределах, которые определяет ГОСТ.
Как снять размеры межкомнатных дверей с коробкой – ширина, высота и толщина
Чтобы максимально точно определить, какая ширина дверной коробки соответствует определенному дверному проему, надо правильно снять размеры. Чтобы определить, стандартная ли ширина (толщина) дверного проема стоит использовать рулетку и следовать основным рекомендациям:
- Прежде всего, демонтируется старая коробка, а сам проем подготавливается к снятию необходимых параметров – снимается остатки штукатурки и монтажной пенки до тех пор, пока дверной проем не обретет четкий контур.

- Какая ширина проема определяется снятием параметров в трех разных точках – внизу, посередине и вверху.
- Длина измеряется от верхней точки проема и до пола. Опытные мастера, во избежание несоответствия параметров, рекомендуют снять мерки высоты в нескольких местах.
- Толщина простенка проема, в который будет монтироваться межкомнатная дверь из МДФ или массива, также определяется на основе снятия нескольких мерок – по обеих сторонах и верхней части проема, в котором будет зафиксированная коробка.
Если ширина обустраиваемого дверного проема не соответствует стандартным параметрам, в соответствии с которыми изготовлена выбранная межкомнатная дверь, то в этом случае недостатки надо устранить. В зависимости от того, какая ситуация сложилась, принимается решение о корректировке проема под монтаж межкомнатной двери. Так, например, если ширина проема не соответствует параметрам коробки, то в этом случае простенки можно прорубить (если надо увеличить ширину) или уменьшить проем, используя дополнительный слой штукатурки или монтажной пенки.
Если межкомнатная дверь уже толщины простенка, то в этом случае можно перфоратором откорректировать толщину простенка в соответствии с требуемыми параметрами.
Стандартные и необычные размеры межкомнатных дверей
Размеры межкомнатных дверей
Каждый человек знает о необходимости наличия качественных межкомнатных дверей в квартире – они разграничивают пространство, дают человеку возможность побыть одному, создают барьер для запахов, звуков и холода. Большинство хозяев предпочитает выбирать межкомнатные двери, исходя из дизайна комнат, но стоит учитывать и другие параметры.
Параметры дверей
В магазинах представлены модели отечественных и Европейских производителей, в зависимости от места изготовления будет отличаться стандартная ширина двери. Российские компании изготавливают двери шириной от 55 до 90 см, а в Европе популярны стандартные размеры 60; 70; 80; 90 см.
От места производства будет так же зависеть высота дверей: европейский стандарт – 2100 мм, российский – 2000 мм, раньше это значение было еще меньше – 1900 мм.
Среди нестандартных дверей есть модели до 2300 мм в высоту.
Ширину межкомнатных дверей выбирают, исходя из параметров дверного проема, а он зависит от назначения помещения
- В туалет и ванную комнату ведут узкие двери, шириной от 55 до 60 мм.
- Кухонные проемы имеют ширину примерно 700 мм.
- Межкомнатные двери – стандартный размер примерно 800 мм.
- Входные двери достигают ширины 900 мм.
Толщина двери будет зависеть от материала, например, раздвижные модели тонкие – 20 мм, а деревянные достигают толщины 50 мм.
Размеры по ГОСТу
Стандартные размеры подходят для большинства квартир, но параметры проемов незначительно отличаются. Чтобы изготовить идеально подходящую дверь, хозяева обращаются в столярную мастерскую, где дверное полотно сделают на заказ.
Согласно ГОСТ, изготавливают стандартные дверные полотна:
- При высоте двери 1900 мм., ее ширина составит 500–600 мм.
- Двери, высотой 2000 мм., имеют ширину 600; 700; 800; 900 мм.

Стандартные размеры являются ходовыми, подходят для всех типовых квартир, поэтому производители выпускают широкий модельный ряд таких дверей.
Габариты двустворчатых дверей
В гостиную люди часто ставят двухстворчатые двери. Часто двери делают стеклянными или украшают различными декоративными элементами. Высота в стандартной квартире составляет 2000 мм, а ширина варьируется от 1280 до 1600 см. Если разделить этот параметр надвое, то получится ширина каждой створки – от 640 до 800 мм.
Размеры коробки
Перед установкой двери необходимо поставить в проем дверную коробку для надежной фиксации полотна и обеспечения правильной работы двери. Почти всегда коробка для установки двери продается в комплекте с дверным полотном, для удобства монтажа производители доукомплектовывают двери необходимой фурнитурой: навесами, замками, наличниками, замками, порой в комплекте можно найти элементы крепежа.
Готовый комплект для установки полностью исключает расхождения в размерах и гарантирует простоту монтажа, поэтому рекомендуется приобретать именно его.
Коробка для фиксации дверного полотна изготавливается из деревянного бруса стандартной ширины – от 30 до 35 мм, есть модели коробок нестандартного размера с брусом – от 15 до 40 мм толщиной. Стандартный размер всегда гарантирует правильность фиксации и долговечность двери. Нестандартные параметры выбирают, если хотят увеличить ширину дверного полотна, или если проем незначительно отличается от стандартных размеров.
Толщина коробки будет равна толщине стен или перегородок в доме. В кирпичные стены монтируют конструкции, толщиной 75 мм, в деревянные – до 100 мм. Если выбранная дверь и ее коробка узкие, то строители применяют доборные элементы для подгона размера проема под выбранную дверь.
Размеры проема
В большинстве домов размеры дверных проемов стандартны и рассчитаны под установку таких же типовых дверей.
Высота будет от 1940 до 2050 мм. Ширина зависит от назначения помещения, в которое ведет дверной проем, узкие двери, шириной 630 мм в туалет и в ванну, и широкие – 1600 мм – в гостиную.
Важно правильно выполнить замеры по самой простой технологии:
- Сначала полностью демонтируется старая дверь, вместе с коровкой.
- Производится зачистка проема для удаления замазки, открывается конструкция стены.
- Производится замер параметров.
Замеры ширины и толщины делают в трех местах: в верхней части, около пола и посередине. Для достижения наибольшей точности рекомендуется выполнять замер с помощью уровня – это позволит проводить измерения параллельно земле.
При необходимости срочно замерить дверной проем, демонтируют только наличники и видят открытую стену, пригодную для замеров.
Двери со скрытой коробкой
Очень интересное решение – двери со скрытой коробкой. Этот вариант обладает преимуществами перед дверьми с наличниками:
- Скрытая коробка делает дверь малозаметной для людей.

- Благодаря отсутствию наличников экономится несколько сантиметров драгоценного пространства или появляется возможность установить дверь в неудобном месте.
- Отсутствие видимой коробки увеличивает световой проем.
- При оформлении двух комнат в отличном друг от друга стиле, такая дверь, как хамелеон, подстраивается под непохожий друг на друга интерьер разных помещений.
- Размерный ряд скрытых дверей предоставляет хозяевам широкий выбор нестандартных изделий, благодаря этому легко оформляется каждый проем в доме.
Но у такой конструкции есть ряд отрицательных качеств:
- Дверь будет скрыта от глаз лишь с одной стороны, с другой дверное полотно будет углублено в стену.
- Предусмотреть установку двери скрытого монтажа необходимо на ранних сроках строительства.
- Установка обойдется недешево, ведь потребует вмешательства квалифицированных специалистов.
Перед покупкой двери хозяева должны точно измерить все проемы в доме, поскольку нельзя прийти в магазин и купить стандартный вариант – они слишком сильно отличаются друг от друга.
Многообразие моделей позволит подобрать идеальную модель для каждого дома.
Межкомнатная дверь: выбираем размер
Вы определились с цветом межкомнатной двери и типом конструкции, но не знаете какой размер вам подойдёт? Не спешите с покупкой, вначале определите размеры ваших дверных проёмов. Из нашей статьи вы узнаете какие размеры межкомнатных дверей считаются стандартными и как верно замерить дверной проём, чтобы потом не было мучительно больно за потраченное время и деньги.
СТАНДАРТНЫЕ РАЗМЕРЫ МЕЖКОМНАТНЫХ ДВЕРЕЙ
Большинство производителей придерживаются стандартных размеров межкомнатных дверей: высота 2000, ширина 600 мм, 700 мм, 800 мм. Более редкие двери с размером 1900 мм * 550 мм так же можно считать стандартом. Размер учитывает только дверное полотно, коробки и наличники считаются отдельно. Эти размеры оптимально подходят для ГОСТ дверных проёмов.
Напомним, что для разных типов помещений установлены свои стандарты размеров:
- На кухню: ширина полотна — 700 мм, высота полотна — 2000 мм, глубина проема — 70 мм.

- В ванную комнату: ширина полотна — 550 мм или 600 мм, высота полотна — 1900 мм или 2000 мм, глубина проема — от 50 мм до 70 мм.
- В комнаты: ширина полотна — 800 мм, высота полотна — 2000 мм, глубина проема — от 70 мм до 20 мм.
Однако не всегда размеры проёмов стандартны. В этом случае, либо меняют проём, либо делаю дверь на заказ. Изготовление двери на заказ на 30% дороже, чем аналогичная, но стандартная модель.
КАК ПРАВИЛЬНО РАССЧИТАТЬ РАЗМЕР ПРОЁМА ДЛЯ МЕЖКОМНАТНОЙ ДВЕРИ?
Даже если вы уверены, что все проёмы в вашем доме стандартны, всё равно проведите замер. Стены могут оказаться далеко не идеальными. Для такого, чтобы узнать оптимальные для вашего помещения размеры двери, вам необходимо знать следующие параметры:
- Размеры дверного проёма. Ширину и высоту замеряем в трёх точках и фиксируем наименьшее значение.
- Толщина дверной коробки. Замер делаем в трёх точках и фиксируем наибольшее значение. Стандартный размер 70 мм.

- Ширина наличников. Ширина наличников важна, если между дверным проёмом и коробкой образуется большая щель.
- Наличие и размеры порога. Порог делается из части коробки и соответствует её толщине.
- Наличие доборов. Если при замере толщины двери вы поняли, что ваш размер далёк от стандартных, то потребуются доборы. Доборы почти у всех производителей имеют стандартную ширину – 100 мм, 150 мм, 200 мм.
Итак, мы сняли все нужные размеры и можем приступить к расчётам. Допустим мы хотим установить межкомнатную дверь размером 2000мм* 800мм с толщиной коробки 25 мм . Тогда мы проведём следующий расчёт:
Расчёт ширины проёма для межкомнатной двери
800 мм (ширина полотна) + (25 + 25) мм (коробка) + (20 + 20) мм (монтажный зазор) + 5 мм (суммарный зазор для свободного входа полотна в коробку) = 895 мм.
Расчет высоты проема для межкомнатной двери
2000 мм (высота полотна) + 25 мм (толщина коробки) + 25 мм (зазор между полом и дверью или порог) + 20 мм (монтажный зазор вверху) + 3 мм (для свободного входа двери в коробку) = 2075 мм.
Округляем значения и получаем, что для двери размером 2000мм* 800мм с толщиной коробки 25 мм нам необходим проём 2080мм*900 мм.
Нестандартные размеры проёмов требуют сужения или расширения. При расширении проёма, в зависимости от материала стены, используют рубку проёма, либо резку. Резка требуется при монолитных стенах, рубка подходит для блоков и кирпича. Сужение проёма выполняется с помощью кирпичной кладки, либо бетонирования.
Толщина дверной коробки межкомнатных дверей — Про дизайн и ремонт частного дома
Толщина дверной коробки межкомнатных дверей
Дверные блоки состоят из двух частей — это полотно и коробка. Большинство выпускаемых дверных блоков имеют стандартные размеры полотен от 60 до 90 см. Размеры дверных коробок, независимо от габаритов дверного полотна, превышают его размеры на определенную величину. Но эта цифра не является стандартом для всех моделей дверных блоков и может отличаться в меньшую сторону в более облегченных дверных коробках.
Как измерить толщину?
Первым делом определимся с терминами и согласуем, что именно понимается под толщиной дверной коробки. Так как часто этот размер путают с глубиной коробки, сразу уточняем: взгляните на изображении ниже. Толщина дверной коробки — это расстояние, равное разнице ширины дверной коробки и ширины дверного полотна разделенной надвое. Глубина на схеме подписана, как «Размер толщины стены в проёме» и равняется 5-7 см. Минимальная глубина у стандартных дверных коробок — 65 мм. Остальные варианты размеров — это уже нестандартные габариты и для заказа уточняйте их наличие в месте покупки.
Определившись с понятием толщины, рассчитаем её для стандартных дверных блоков. У общепризнанных производителей в классических моделях дверей размеры дверной коробки больше размеров полотна на 70 мм как по ширине, так и по высоте, если коробка с порогом. Так, например, для дверного полотна шириной 800 мм, ширина коробки будет 870 мм. По этим размерам легко узнать, какая стандартная толщина дверной коробки межкомнатных дверей.
Для этого воспользуемся формулой:
Где Тк — толщина дверной коробки, Шк — ширина коробки, Шп — ширина полотна
На примере дверного полотна с шириной 800 мм расчет будет выглядеть так:
- Тк = (870 мм — 800 мм) / 2 = 35 мм
Полученная в результате величина и будет стандартная толщина дверной коробки межкомнатных дверей, она равна 35 мм.
Существуют также облегченные дверные коробки, размеры которых отличаются от стандартных. Толщина такой коробки будет менее 35 мм и перед покупкой уточните у продавца, какую дверь вы покупаете. В последнее время производители дверей стали выпускать больше облегченных коробок и существует вероятность, что при покупке случайно можно выбрать именно такую модель. Толщина бруса (или МДФ), используемого для облегченных коробок равна 25 мм.
Виды дверных коробок на видео
Для чего ещё нужно знать толщину коробки?
Толщина дверной коробки не случайно равна 3.
5 см. Как мы уже писали, габариты дверного проёма также рассчитываются в зависимости от размеров дверного полотна и в стандартных межкомнатных проёмах они на 10 см больше ширины полотна. Таким образом мы получаем расстояние от полотна до дверного проёма равное 5 см. Тут как раз помещается 3.5 см толщины коробки и 1.5 см зазор для закрепления дверной коробки в стене при помощи монтажной пены.
Всё, что вы хотели знать про дверные коробки в этом видео:
Установка дверного блока (полотно + коробка) происходит не только на монтажную пену. Хотя каждый метод и включает в себя её использование, различаются технологии по типу дополнительных креплений, применяющихся во время установки. Чаще всего используют простые деревянные распорки или колышки, которые вставляют в пространство между коробкой и проёмом. С их помощью происходит выравнивание блока в проёме по уровню: каждый колышек плотно вбивается так, чтобы дверная коробка не деформировалась, но весь блок плотно держался в проёме.
Когда он достаточно крепко зафиксирован распорками, с помощью специального пистолета в пустоты происходит нанесение монтажной пены. Важно также установить горизонтальные распорки внутри коробки, чтобы впоследствии пена при расширении не деформировала коробку.
Таким образом, мы выяснили, что стандартная толщина дверной коробки межкомнатной двери равна 3.5 см. При этом важно также помнить, что в последние годы производители всё чаще выпускают нестандартные коробки. Их также называют облегченными и используют в тех случаях, когда есть необходимость установить более широкое полотно в небольшой по размерам дверной проём.
Какой толщины бывают коробки межкомнатных дверей
Известно, что мебель бывает стандартных и нестандартных размеров. В первом случае легко найти подходящие предметы и легко их отремонтировать. Да и цена их более доступна, поскольку производство не требует настройки оборудования. Во втором случае подобрать изделие с подходящими параметрами значительно сложнее, а изготовление на заказ обойдется дороже.
Толщина дверной коробки межкомнатной двери относится именно к таким параметрам.
Возникновение стандарта
Появление стандарта для любого изделия связано с несколькими факторами. Для кухонной мебели, это, например, эргономичность и габариты кухонной техники, для книжного шкафа – размеры книг, которые вполне стандартизированы. Дверные проемы тоже делают исходя из определенных правил:
- ширина проема не может быть менее 60 см. Иначе пользоваться им будет практически невозможно;
- тот же параметр для одностворчатой конструкции не может быть более 120 см, так как в этом случае полотно будет иметь чрезмерную массу;
- высота, как правило, ограничивается 2100 см, причем встречается и ниже, поскольку в СССР строили дома с очень низкими потолками;
- материал стены практически не влияет на толщину коробки, а вот толщина полотна значение имеет;
- учитывается при разработке рамы материал полотна. Как правило, раму и полотно изготавливают из одного и того же материала, так что соответствие веса здесь соблюдается.
А вот при замене изделия необходимо учитывать эту особенность.
Размерные параметры
В магазине или при изготовлении на заказ, как правило, предлагается модель вместе с коробкой. Причем при выборе габаритов внимание обращается именно на общие размеры. Замеряют габариты всего блока, прибавляют по 1,5 см и получают те параметры проема, которые нужны для установка двери.
Если речь не идет о капитальной стене с очень большой толщиной, то подогнать размеры проема под габариты полотна в раме проще и, в конечном итоге, дешевле, чем заказывать под проем изделие.
В среднем коробка прибавляет к полотну по 70 мм по периметру. Стандартные размеры коробки коррелируют с параметрами самой створки следующим образом.
Размеры коробок межкомнатных дверей: ширина, высота и толщина.
| Межкомнатная дверь | Дверная коробка | ||
| Высота, мм | Ширина, мм | Высота, мм | Ширина, мм |
| 2000 | 600 | 2071 | 671 |
| 2000 | 700 | 2071 | 770 |
| 2000 | 800 | 2071 | 870 |
| 2000 | 900 | 2071 | 970 |
| 2000 | 1202 | 2071 | 1272 |
| 2300 | 900 | 2371 | 970 |
| 2300 | 1402 | 2371 | 1472 |
| 2300 | 1802 | 2371 | 1872 |
Последние 2 варианта предполагают наличие 2 створок, хотя бы узкой неактивной и широкой активной.
- Какая толщина коробки межкомнатной двери подойдет, зависит от величины стены. Толщина стены проема в большинстве зданий равна 75 мм. Соответственно, стандартная толщина коробки межкомнатной двери составляет 75 мм. Очень редко встречается величина в 95 мм, а еще реже – в 65 мм.
Если стена отличается очень уж нетиповыми размерами, то прибегают к специальным приемам. Например, при большой величине проем перекрывают с помощью расширителя – откоса иди добора. А если стена слишком узкая, то допускается даже распил рамы, лишь бы она могла удерживать полотно. На фото – оформление проема с откосами.
Рассматривать параметры комплекта, а не полотна намного удобней за счет того, что в готовом блоке предусмотрены зазоры на свободное открывание створки и для установки фурнитуры. Если же раму подбирают отдельно, зазоры необходимо учитывать самостоятельно, причем их величина зависит от материала полотна.
Материалы
Лучше всего если весь дверной блок изготовлен из одного и того же материала.
Во-первых, один и тот же материал реагирует на изменение температуры и влаги одинаково. Во-вторых, изнашивается материал примерно одинаково, что не вызывает эстетического диссонанса.
На размеры коробки межкомнатных дверей по толщине этот параметр не влияет, однако при необходимости использовать расширители значение приобретает.
- Массив дерева – дорогой и красивый материал, пользующийся неизменной популярностью. Однако массив заметно реагирует на сырость.
- МДФ– наиболее популярный материал. От дерева его выгодно отличается постоянство размеров: под действием температуры или сырости полотно не меняется. МДФ может иметь разное покрытие, что как удорожает, так и удешевляет стоимость изделия:
- шпон – срез натурального дерева. Такой вариант от массива не отличить, а стойкость к сырости у нее более высокая;
- экошпон – многослойный пластик, в точности воспроизводящий цвет и фактуру древесины. Экошпон отличается очень высокой износостойкостью, благодаря чему его рекомендуют использовать в публичных местах;
- меламиновая пленка – обычное покрытие для материала, воспроизводит цвет, но не структуру древесины.

Как правильно вычислить размер межкомнатных дверей с коробкой, стандарт ГОСТ
При ремонте необходимо уделить должное внимание установке межкомнатных дверей. Безусловно, есть определённые стандартные габариты, но чтобы не пришлось разрушать стену или менять уже выбранное полотно, необходимо изучить все нюансы. В этом деле важно правильно вычислить размеры проёма, знать стандарт и особенности разных типов конструкций. На современном рынке можно встретить продукцию отечественную и зарубежную, важно помнить, что ГОСТы отличаются.
ГОСТ показатели размера полотна
Параметры дверного полотна необходимо учитывать при вычислении проёма. Двери и коробка имеют утверждённые государством стандартные размеры.
Таблица ГОСТ межкомнатных полотен:
Вид помещенияШирина смВысота смГлубина проема смкухня702007Санузел, ванна55-60190-2005-7комната802007-20Гостиная (двустворчатая дверь120 (два полотна)2007-20
Если ранее проводились ремонтные работы, стены выравнивались или демонтировались, глубина может не соответствовать вышеизложенным данным.
Рынок предлагает большой выбор дверей и комплектующих от отечественных и зарубежных производителей. Чаще всего продукция имеет высоту 200 см, ширину 60, 70, 80 см (реже 190 на 60, 70,80 см). Толщина дверной коробки начинается от 15 мм и до 45мм. Зная стандарты и размеры дверного проёма можно выбрать оптимальный вариант. Бывают ситуации, когда игнорирование параметров заканчивается расширением проёма или возвращением только что приобретённого полотна.
При покупке полотна зарубежной фирмы необходимо особо внимательно изучить размеры ведь их стандарт несколько отличается.
Формула замера дверного проема
Если необходимо сделать проём, а с дверью вопрос еще не решён, необходимо заранее учесть такие моменты:
- Габариты полотна: высота и ширина,толщина.
- Габариты дверной коробки: ширина и толщина.
- Ширина наличников.
Высота (В дв) – 200 см
Ширина (Ш дв) –70 см
Толщина (Т к) – 3 см
Блок двери (Бд) – 2 см
- Высота порога (В п) – 2 см
Формула вычислений ширины дверного проёма:
Ш дв +2*Т к+Мз+2*Бд = 70+2*3+1+2*2=81 см
Формула вычислений высоты проёма:
В дв + В п +2*Т к= 200+2+2*3=208
Вывод: для дверного полотна 200 на 70 необходим дверной проём 208 на 81.
Глубина проёма: стандарт 7,5 см, поэтому производители делают дверные коробки под эту величину. Если полотно уже куплено: придётся изготовить коробку индивидуально, шире – использовать добор. Поэтому лучше провести вычисления заранее.
Алгоритм измерения величины дверного проёма
Чтобы правильно замерить размер проёма, необходимо соблюдать последовательность действий:
- Измерить высоту от пола до верха (если проем не ровный, нужно замерять в районе сужения), до середины наличника.
- Ширина – от середины левого до середины правого наличника (учитывая сужение).
- Глубина измеряется в верхней, средней и нижней части (чтобы найти саму широкую величину).
Положительный результат зависит от точности измерений.
Таблица вычисления дверных проёмов стандарт:
| Ширина см | Высота см | Вид комнаты | Стандарт |
| 62 — 65 | 195 — 197 | Туалет, ванна | 55*190 |
| 67 – 70 | 195 — 197 | Туалет, ванна | 60*190 |
| 67 — 70 | 205 — 207 | Туалет, ванна | 60*200 |
| 77 – 80 | 205 — 207 | Кухня | 70*200 |
| 87 – 90 | 205 — 207 | Комната | 80*200 |
| 97 – 100 | 205 — 207 | Комната | 90*200 |
| 127 — 130 | 205 — 207 | Гостиная (двустворчатая дверь) | 2*60*200 |
Параметры коробки и дверного полотна
Габариты коробки межкомнатных дверей должны соответствовать размерам полотна, учитывая зазоры.
Рама должна быть пропорциональна толщине стены. Если остаётся свободное место используют доборы, которые перекрывают просветы.
Добор – это стойки по периметру коробки для расширения дверного короба.
Главным элементом всё же остаются сами двери. Стандарт определен опираясь на такие параметры:
- Высота полотна межкомнатных дверей: 190-200 см. Иногда необходим индивидуальный подход. При расчётах необходимо учесть зазор между основанием и полом, чтобы полотно свободно открывалось и закрывалось.
- Ширина зависит от комнаты.
- Толщина – разная (зависит от требований производителя), стандарт – 4,5 .
Особенности двустворчатых дверей
Для гостиной удачным решением в дизайне интерьера будет установка двустворчатых межкомнатных дверей. Внимание, при вычислении размеров величины увеличить в два раза.
Что касается ГОСТа: стандартом является ширина от120 до 150 см. Этот диапазон позволяет получить удобную полноценную и функциональную конструкцию. Толщина – 4,5 см.
Подробно про замер и установку:
Если проём не соответствует заданной величине и не поддаётся расширению необходимо следующее:
- Одна створка находится в зафиксированном положении и используется по необходимости.
- Ширина этой сворки:1/2 или 1/3 от ширины стандартной межкомнатной двери.
- Вторая — полноценная дверь.
Оба варианта имеют большой плюс в функциональности: улучшают проходимость: легко вносить, выносить мебель.
Что касается высоты: если проём больше заданных стандартов (размер: 200-210 см) вверху крепится специальная неподвижная планка.
Максимальные размеры полотна
Самые широкие двери стандарт – 90 см. Только ограниченное количество производителей выпускают продукцию таких габаритов. В новостроях такие параметры межкомнатной дверной коробки не используют, потому, как конструкция смотрится нелепо или громоздко. Всё же такие размеры встречаются:
Самый ходовой материал для межкомнатных габаритных (и не только) полотен: МДФ.
Размер дверной коробки межкомнатной двери
Широкий выбор межкомнатных дверей предлагаемых современными производителями – по цвету, материалу, фактуре – большое преимущество при выборе подходящей модели. Но возникает зачастую одна проблема: правильно подобрать коробку по размеру. Измерение дверного проема не так просто, как кажется, да и оценка свойств изделия тоже имеет свои тонкости.
Особенности
Основная масса дверей делается стандартными, но важно учитывать, что однозначно предписанных величин коробок для межкомнатных проходов не существует. Рекомендуется подбирать коробку таким образом, чтобы вся конструкция могла бы гармонично войти в проем. По высоте и ширине рекомендуется брать комплект немного (в пределах трех сантиметров) уступающий проему.
Наибольший стандартный размер коробки по ширине — 90 сантиметров, но отыскать такую модель можно в каталоге далеко не каждого производителя. Ведь в многоэтажных и в современных частных домах проемы подходящего размера – большая редкость. Самые широкие двери можно встретить в «сталинской» застройке, а также в крупных офисных центрах.
Дверные коробки и полотна, выпускаемые за рубежом, делаются по совершенно иным стандартам, так что выбирать их нужно тщательнее всего!
Коробки для дверей, не имеющих порогов, делаются в форме буквы П, из пары деревянных стоек, соединяемых сверху поперечной перекладиной. Преимуществом таких решений оказывается совместимость со створками самой разной высоты и их дешевизна. Прямоугольные рамы, изначально имеющие порог, нужны тем, кто хочет максимально просто и быстро установить всю конструкцию. Рекомендуется выбирать телескопические наличники, потому что изделия с ними будет проще переставить при капитальном ремонте.
Габариты
Во внимание принимают и параметры конкретного помещения — насколько оно велико, для чего предназначено. Самый распространенный тип имеет в двух плоскостях размеры 88х205 см, при ширине 80 см — такие блоки пригодны и для квартир, и для офисов. Для кухонных проемов следует использовать коробки размером 65х200 см, а для ванной комнаты или совмещенного санузла 60х200 см. Даже если размеры входа в такие комнаты позволяют, многие люди все равно выбирают узкие коробки, восполняя недостающие сантиметры за счет доборов.
Ширина
Типичная ширина колеблется от 50 до 90 сантиметров. Во внимание принимают параметры конкретного помещения — насколько оно велико, учитывают и для чего предназначено. В гостиных принято делать самые широкие проемы, чтобы все гости могли бы проходить беспрепятственно. Зазор между стенами составляет 122 см, а дверная коробка тогда имеет 119 сантиметров в ширину и 193 сантиметра в высоту.
Для многостворчатых дверей используют створки по 55 сантиметров, для одностворчатых (в малогабаритном жилье) — по 80 или 90 сантиметров. Делать еще меньше не рекомендуется независимо от того, насколько тесно будет, ведь придется иногда выносить или заносить мебель. Внимание: французские одинарные двери стандартного образца в ширину имеют 68, 79 или 89 сантиметров.
Высота
По высоте двери для межкомнатных переходов составляют чаще всего от 195 до 207 см. В России, Финляндии, Испании и Италии выпускают конструкции высотой 190, 200 и 210 сантиметров.
Толщина
Этот параметр колеблется в разных конструкциях от 2 до 7,5 сантиметров. Ничего удивительного тут нет — разная толщина оптимальна для разных стен. Если они сделаны из гипсокартона или представляют собой кирпичную кладку, правильнее всего покупать коробки толщиною 75 миллиметров. Смонтировать их вам будет проще, а если и возникнет небольшая разница с реальным размером, устранить ее доборами не составит труда.
Как выбрать?
Проще всего купить для создания деревянной межкомнатной двери доски и бруски 5-6 сантиметров толщиной, 10 сантиметров шириной. Но правильнее будет потратить немного дополнительного времени и выбрать брус, толщина которого ни на миллиметр не отличается от толщины двери.
Кроме размера межкомнатной двери, нужно выбирать и материал для нее. Лиственница и липа считаются лучшими сортами древесины, сосна всего лишь приемлема. А вот ольха, граб, бук плохи тем, что часто коробятся при иссушении или чрезмерной влажности воздуха. Дуб более надежен в этом отношении, но использовать его широко мешают высокие цены.
Стальные и пластиковые конструкции могут использоваться как коробки для дверей на входе, либо в ванных комнатах, туалетах и санузлах. Всегда оценивайте и цветовые решения, и вид отделки, и его фактуру, и тип порога. При оценке подходящих размеров нужно учитывать, будет использоваться автоматический доводчик или нет. Когда известно, что полы еще не уложены, вводится поправка на высоту стяжки и характеристики самого покрытия, нельзя игнорировать ограничения, связанные с применением водяных и инфракрасных теплых полов.
Кроме параметров проема, ширина коробки должна подстраиваться и под высоту потолков. Довольно часто возникает ситуация, когда из-за нее по дизайнерским соображениям нельзя использовать нужную дверь. При монтаже коробки на гипсокартонные стены нужно иметь схему местоположения несущего каркаса, чтобы не понадобилось внезапно перемещать часть стены.
Ширина створки при расчетах увеличивается на двойную толщину бруса (не забывайте, что сечение короба Г-образное). Примите во внимание выходящую за контур проема часть уплотнительного материала (она может составлять от 30 см и иметь в высоту 2,5-3 сантиметра), и опорную поверхность под брусья. Добавив еще 20-25 миллиметров зазора под установку коробки, сопоставьте получившуюся цифру с фактическими размерами прохода. Те же принципы помогут рассчитать и окончательную высоту (для нее нужно еще ввести поправку на порог).
Расширение проема при необходимости — лучше, чем искусственное сужение при помощи различных конструкций: дверь при установке с доборами не встанет так устойчиво, как размещенная вплотную к стене. Да и тепла будет уходить больше.
Чтобы параметры были измерены максимально точно и быстро, используйте всегда уровень, желательно — лазерный. Когда глубина проема на 10% и более превосходит глубину изделия, могут возникнуть серьезные проблемы. Тогда нужно или ставить откосы, или (что менее профессионально), пропиливать брус по длине, уменьшая его толщину, но не более чем на 1-1,5 сантиметра.
Учтите, что браться за такую работу должны только опытные исполнители, располагающие качественным инструментом. Если точную ширину и высоту проема не удается установить из-за его сложной конфигурации, требуется сделать замеры хотя бы в трех местах для каждой плоскости. Как окончательное значение принимается среднее арифметическое полученных результатов.
Когда нужно комплектовать дверную коробку доборами, лучше берите пластиковые элементы, они самые гибкие и упрощают подгонку к основным поверхностям. К сведению: любой доборный элемент должен иметь те же цвет и фактуру, что и вся остальная конструкция. Чтобы меньше делать разрезов, промежутки, отделяющие проем от коробки, правильнее перекрывать широкими наличниками. Выбрать типоразмер, подходящий именно вам, не составит особенных трудностей в любом специализированном магазине.
Не покупайте дверные коробки, сделанные из сочетания разных материалов — у них неизбежно отличаются физические свойства, а потому может скоро возникнуть коробление, дверь будет тяжелее закрывать. Важно: когда старая дверь еще стоит, замер расстояний проводится от центральной части наличников.
В квартирах, введенных в строй до 1991 года, используют межкомнатные двери с коробками размером 108 миллиметров; если перегородка составляет 10 сантиметров в толщину, требуется устанавливать уже коробку толщиной 120 миллиметров. Внимание: по действующим нормативным требованиям в любом помещении, где может одновременно находиться 16 человек и более, можно использовать только двери от 1,2 метров шириною.
Монтаж
Монтаж дверной коробки проводится с использованием клиньев и брусьев, электрической фрезы, ножовки, стусла, дрели. Дополнительно потребуются монтажная пена и карандаш, строительный уровень, нож с тонкой заостренной режущей кромкой, саморезы и гвозди с миниатюрными шляпками. Когда начата установка короба, откосы должны быть уже проверены хотя бы в трех местах и по вертикали, и по горизонтали. Недопустимо отклонение в пять сантиметров и более, оно требует дополнительного выравнивания. Не забудьте выдержать технологический зазор до поверхности пола, он составляет 1,5 см.
При отсутствии опыта установки дверей следует собирать их элементы под углом 45 градусов — это самое простое решение. Фрезой проделывают выемки для петель, край любой петли должен находиться не ближе 18 сантиметров к верхней и нижней границам полотна. Все поверхности следует тщательно зачистить и выровнять, только после отметки на приставленной двери делают углубления под шарниры.
Готовя отверстия для саморезов, правильнее всего брать сверла того же диаметра, что и сами крепежи.
Перевернув полотно горизонтально (петли в это время уже должны стоять), на противоположной от них стороне сверлят выемку под замок с защелкивающим устройством. Наметив карандашом окантовку, снова берут фрезу и готовят паз для лицевой планки. Закончив с установкой замка, сверлят отверстия под ручки (сами ручки ставят на саморезы и накладные детали с помощью шестигранного ключа). Все, теперь можно полностью собирать коробку и ставить ее в проем!
При выполнении работы и вычислении размеров не забывайте, что монтажная пена неизбежно будет расширяться при затвердевании. Если сомневаетесь в полученном результате или в своих возможностях, правильнее вызывать подготовленных замерщиков перед установкой двери.
О том, как правильно замерить дверные проемы перед покупкой межкомнатной двери, смотрите в следующем видео.
Какая толщина дверной коробки межкомнатной двери
Какой толщины бывают коробки межкомнатных дверей
Известно, что мебель бывает стандартных и нестандартных размеров. В первом случае легко найти подходящие предметы и легко их отремонтировать. Да и цена их более доступна, поскольку производство не требует настройки оборудования. Во втором случае подобрать изделие с подходящими параметрами значительно сложнее, а изготовление на заказ обойдется дороже.
Толщина дверной коробки межкомнатной двери относится именно к таким параметрам.
Возникновение стандарта
Появление стандарта для любого изделия связано с несколькими факторами. Для кухонной мебели, это, например, эргономичность и габариты кухонной техники, для книжного шкафа – размеры книг, которые вполне стандартизированы. Дверные проемы тоже делают исходя из определенных правил:
- ширина проема не может быть менее 60 см. Иначе пользоваться им будет практически невозможно;
- тот же параметр для одностворчатой конструкции не может быть более 120 см, так как в этом случае полотно будет иметь чрезмерную массу;
- высота, как правило, ограничивается 2100 см, причем встречается и ниже, поскольку в СССР строили дома с очень низкими потолками;
- материал стены практически не влияет на толщину коробки, а вот толщина полотна значение имеет;
- учитывается при разработке рамы материал полотна. Как правило, раму и полотно изготавливают из одного и того же материала, так что соответствие веса здесь соблюдается. А вот при замене изделия необходимо учитывать эту особенность.
Размерные параметры
В магазине или при изготовлении на заказ, как правило, предлагается модель вместе с коробкой. Причем при выборе габаритов внимание обращается именно на общие размеры. Замеряют габариты всего блока, прибавляют по 1,5 см и получают те параметры проема, которые нужны для установка двери.
Если речь не идет о капитальной стене с очень большой толщиной, то подогнать размеры проема под габариты полотна в раме проще и, в конечном итоге, дешевле, чем заказывать под проем изделие.
В среднем коробка прибавляет к полотну по 70 мм по периметру. Стандартные размеры коробки коррелируют с параметрами самой створки следующим образом.
Размеры коробок межкомнатных дверей: ширина, высота и толщина.
| Межкомнатная дверь | Дверная коробка | ||
| Высота, мм | Ширина, мм | Высота, мм | Ширина, мм |
| 2000 | 600 | 2071 | 671 |
| 2000 | 700 | 2071 | 770 |
| 2000 | 800 | 2071 | 870 |
| 2000 | 900 | 2071 | 970 |
| 2000 | 1202 | 2071 | 1272 |
| 2300 | 900 | 2371 | 970 |
| 2300 | 1402 | 2371 | 1472 |
| 2300 | 1802 | 2371 | 1872 |
Последние 2 варианта предполагают наличие 2 створок, хотя бы узкой неактивной и широкой активной.
- Какая толщина коробки межкомнатной двери подойдет, зависит от величины стены. Толщина стены проема в большинстве зданий равна 75 мм. Соответственно, стандартная толщина коробки межкомнатной двери составляет 75 мм. Очень редко встречается величина в 95 мм, а еще реже – в 65 мм.
Если стена отличается очень уж нетиповыми размерами, то прибегают к специальным приемам. Например, при большой величине проем перекрывают с помощью расширителя – откоса иди добора. А если стена слишком узкая, то допускается даже распил рамы, лишь бы она могла удерживать полотно. На фото – оформление проема с откосами.
Рассматривать параметры комплекта, а не полотна намного удобней за счет того, что в готовом блоке предусмотрены зазоры на свободное открывание створки и для установки фурнитуры. Если же раму подбирают отдельно, зазоры необходимо учитывать самостоятельно, причем их величина зависит от материала полотна.
Материалы
Лучше всего если весь дверной блок изготовлен из одного и того же материала. Во-первых, один и тот же материал реагирует на изменение температуры и влаги одинаково. Во-вторых, изнашивается материал примерно одинаково, что не вызывает эстетического диссонанса.
На размеры коробки межкомнатных дверей по толщине этот параметр не влияет, однако при необходимости использовать расширители значение приобретает.
- Массив дерева – дорогой и красивый материал, пользующийся неизменной популярностью. Однако массив заметно реагирует на сырость.
- МДФ– наиболее популярный материал. От дерева его выгодно отличается постоянство размеров: под действием температуры или сырости полотно не меняется. МДФ может иметь разное покрытие, что как удорожает, так и удешевляет стоимость изделия:
- шпон – срез натурального дерева. Такой вариант от массива не отличить, а стойкость к сырости у нее более высокая;
- экошпон – многослойный пластик, в точности воспроизводящий цвет и фактуру древесины. Экошпон отличается очень высокой износостойкостью, благодаря чему его рекомендуют использовать в публичных местах;
- меламиновая пленка – обычное покрытие для материала, воспроизводит цвет, но не структуру древесины.
Стандартные размеры дверных коробок по ширине, высоте и толщине
Первое, на что нужно обратить внимание при покупке межкомнатных или металлических дверей – это их размер. Его выбор зависит от назначения конструкции и уже существующего проема, в который она будет установлена. При этом значение имеют не только габариты полотна, но и дверной коробки.
Стандартные размеры межкомнатных дверей
Отечественные и иностранные производители предлагают много разных вариаций размеров межкомнатных дверей. Наиболее часто можно встретить такие значения по ширине:
Однако в продаже встречаются двери, ширина которых отличается от принятых стандартов. Так, можно увидеть полотна в 50 и 55 см.
Для раздвижных и двустворчатых дверей ширина двери будет больше. Она может составлять от 90 сантиметров до 1 метра 80 сантиметров. Двери больших размеров изготавливаются на заказ.
Стандартная высота дверного полотна составляет:
- 2 метра;
- 2 метра 30 сантиметров.
Но часто можно встретить двери 1 метр 90 сантиметров в высоту, а также 2 метра 10 сантиметров и 2 метра 20 сантиметров.
Стандартные размеры металлических дверей
Входные металлические двери считаются эвакуационным выходом, поэтому на них распространяются определенные требования, касающиеся габаритов. Они изложены в СНиП и ГОСТ. Но их выполнение при изготовлении дверей не обязательно, поэтому возможны отклонения в большую или меньшую сторону.
Ширина входных стальных дверей не может быть меньше, чем:
- 80 см в частных домах и квартирах;
- 120 см в помещениях, где количество людей превышает 15 человек.
Высота металлических дверей должна быть не менее 1 метра 90 сантиметров. Стандартные показатели, как и у межкомнатных дверей, составляют:
- 2 метра;
- 2 метра 30 сантиметров.
По индивидуальному заказу можно изготовить нестандартные металлические двери. Их высота и ширина будут соответствовать размеру проема. Но это скажется на весе конструкции, а, следовательно, и на нагрузке на стены. Поэтому увеличивать габариты металлической двери нужно с учетом этих особенностей.
Ширина и высота двери с коробкой
Обычно двери и коробка к ним продаются в комплекте. Они подогнаны по размеру и не будут вызывать проблем при установке.
Ширина двери вместе с коробкой зависит от ширины полотна:
- для полотна 800 мм она составит 87 см;
- для полотна 700 мм ширина с коробкой будет 77 см;
- значение для двери 600 мм будет составлять 67 см.
При расчетах не зависимо от размера полотна 550, 600, 700 или 800 мм, учитывается величина зазоров между коробом и дверью, который везде будет одинаковым. Она равняется 6-8 миллиметрам, с каждой стороны по 3-4 миллиметра.
Стандартная высота двери вместе с коробкой также будет зависеть от высоты дверного полотна:
- при значении 2 метра она составит 2 метра и 7 сантиметров;
- при значении 2 метра 30 сантиметров она составит 2 метра и 37 сантиметров.
При расчетах учитываются размеры зазоров и порога. Величина зазора – значение постоянное, оно никак не зависит от высоты двери.
Высоту порога нужно считать для входных и межкомнатных дверей, устанавливаемых на входе в санузлы. Для прочих дверей между полом и полотном обязательно наличие зазора. Он составляет 15-20 мм для кухонных дверей, если в доме используется сжиженный газ и 5-10 мм во всех остальных случаях. Горизонтальный зазор в верхней части двери, как и вертикальные, составляет 3-4 мм.
Толщина дверной коробки может варьироваться от 15 до 45 мм в зависимости от материала и производителя. Этот показатель должен быть достаточным, чтобы обеспечить надежное крепление и эксплуатацию двери.
Назначение двери в зависимости от размера
Размер двери во многом зависит от ее назначения. Ширина в 50, 60, 70 или 80 сантиметров зависит от комнаты, на входе в которую она будет установлена.
Дверь шириной 50 см очень узкая. Ее обычно ставят на входе в подсобные помещения, например кладовку или гардеробную. Для межкомнатных дверей 50 сантиметров – слишком узкий проход. Его будет недостаточно для свободного перемещения и передвижения мебели. Поэтому их делают шире, чем 50 сантиметров.
Дверь, ширина которой составляет 600 миллиметров, подходит для установки в ванную и туалет в небольших квартирах. Ее также можно установить на входе в кухню.
Полотно, размер которого составляет 70 сантиметров в ширину, используется для отделения спален, кабинетов и прочих комнат. 70 см, как правило, достаточно для комфортного перемещения по квартире. Такая ширина позволяет пронести мебель и другие предметы, имеющие большой размер. Иногда можно встретить межкомнатные двери шириной 80 сантиметров.
Проем при входе в гостиную достаточно широкий. В него часто ставят одностворчатые и двустворчатые двери или раздвижные системы, ширина которых может быть 90 сантиметров и больше. Однако в малогабаритных квартирах проем в гостиную может быть небольшим, рассчитанным на дверь 700 или 800 мм.
Занимаясь ремонтом или строительством, заранее обдумайте, какого размера будут входные металлические и межкомнатные двери. Делая проем под стандартные значения ширины 600, 700, 800 мм или больше и высоты 2 и 2,3 м, вам не придется переделывать проем или делать двери на заказ.
крайне нужна была такая информация.без болтовни.коротко,профессионально.большое спасибо.
В разумных рамках: параметры короба двери
До монтажа дверного полотна требуется правильно замерить проём и короб. Предельная точность в определении размеров гарантирует долгосрочную работу изделия.
Подбор подходящего размера дверной коробки
Определение параметров рамочной конструкции для дверного полотна начинается с расчёта габаритов прохода в стене и изучения ГОСТа.
Замер дверного проёма по формуле
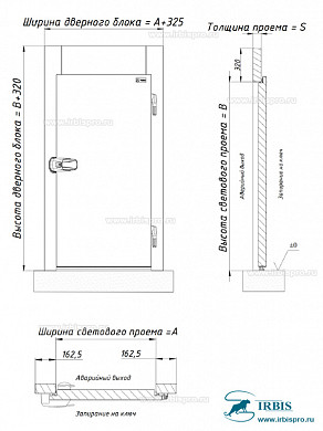
Убедиться, что дверная коробка отлично вписывается в проём по ширине, поможет простая формула Шп = Шдв + 2*Тк + Мз*2 + Зп + Зз, где Шп — это ширина проёма, Шдв — ширина дверного полотна, Тк — толщина короба, Мз — монтажный зазор, Зп — зазор под петли, а Зз — зазор под замок.
Согласно формуле, дверь шириной 800 мм с коробкой толщиной 30 мм, монтажным зазором в 10 мм, просветом под петли в 2 мм и просветом под замок в 4 мм должна быть размещена в проёме шириной почти 89 см (80+2*3+1*2 +0,2 +0,4=88,6 см).
В размер дверного проёма входят габариты дверного полотна и дверной коробки
А избавиться от сомнений, подходит ли короб проходу в комнату через стену по высоте, поможет формула Вп = Вдв + Рп + 1 см + Тк + МЗв + МЗн, где Вп — это высота прохода в комнату, Вдв — высота купленной двери, Рп — расстояние от пола до порога, 1 см — стандарт величины щели между стеной и дверной рамой (коробом) в верхней области проёма, Тк — толщина дверного короба (3–10 см), МЗв — монтажный зазор между рамочной конструкцией и дверным полотном вверху, а МЗн — монтажный зазор между рамочной конструкцией и порогом внизу.
Получается, двери форматом 200х90 см с блоком толщиной 5 см и порогом высотой 3 см нужно вставлять в проём высотой не менее 210 см (200 см + 3 см + 1 см + 5 см + 3 мм + 5 мм = 209,8 см).
Зависимость дверной коробки от проёма
Как обозначено в ГОСТе 6629–88, коробка межкомнатных дверей должна быть на 5–7 см больше ширины стандартного дверного полотна. А блок дверей на входе в дом рекомендуют делать шириной до 12 см, ведь такая входная группа имеет функцию эвакуационного выхода.
По высоте разница между двумя элементами дверного блока может составлять от 43 мм. Это значит, что дверь размером 600х1900 мм можно монтировать в короб с параметрами 665х1943 мм, вставленный в проём шириной 685 мм и высотой 1955 мм.
Размеры дверного блока увеличиваются по мере прибавления к полотну рамочной конструкции и наличников
Таблица: соответствие размеров короба дверному полотну и проёму
| Высота и ширина дверного полотна (мм) | Высота и ширина короба или рамы (мм) | Высота и ширина проёма (мм) | Высота и ширина проёма, включая дверные наличники (мм) |
| 550х1880 | 615х1923 | 635х1935 | 750х2000 |
| 600х1900 | 665х1943 | 685х1955 | 800х2020 |
| 600х2000 | 665х2043 | 685х2055 | 800х2120 |
| 700х2000 | 765х2043 | 785х2055 | 900х2120 |
| 800х2000 | 865х2043 | 885х2055 | 1000х2120 |
| 900х2000 | 965х2043 | 985х2055 | 1100х2120 |
| 600х2100 | 665х2143 | 685х2155 | 800х2220 |
| 700х2100 | 765х2143 | 785х2155 | 900х2220 |
| 800х2100 | 865х2143 | 885х2155 | 1000х2220 |
| 900х2100 | 965 х2143 | 985х2155 | 1100х2220 |
Видео: расчёт дверного проёма
Стандартные размеры рамы для двери
Производители дверных коробок ориентируются на габариты полотна и чаще всего выпускают изделия шириной:
Палка дверного короба имеет размер 30–35 мм. Эти миллиметры добавляются к ширине двери с каждой её стороны. Поэтому и получается, что рама обычно увеличивает размер дверного полотна на 7 см.
За счёт дверной коробки ширина двери увеличивается как минимум на 6–7 см
Высота дверной рамы обусловливается высотой полотна. Если второй показатель равен 2000 мм, то первый может составлять 2070 мм.
Дверная коробка добавляет к высоте двери 6–7 см
Назначение двери в зависимости от размера
Размеры двери отражаются не только на габаритах короба, но и на условиях использования изделия. Например, особо широкое дверное полотно всегда ведёт в гостиную.
Таблица: параметры дверей с учётом функции помещения
| Тип помещения | Размеры двери (см) | |
| Высота двери | Ширина двери | |
| Комната, спальня | 200 | 80 |
| Кухня | 200 | 70 |
| Ванная комната, туалет | 190–200 | 55–60 |
| Коридор | 200 | 70 |
| Гостиная | 200 | 60+60 или 40+80 (два полотна) |
| Частный дом, квартира | 207–237 | 90–101 |
Отзывы о дверях с коробом
На рынке, в основном, планки дверной коробки имеют толщину в узком месте около 20–25 мм. Прибавим зазор по 5 мм с каждой стороны, получается 86–87.
lightwall
http://www.mastergrad.com/forums/t151453-shirina-dverey-i-shirina-dvernogo-proema/
А я специально делала проём 70 см, а полотна брала 60 см, ещё сдвинула немного двери в ванной, чтобы в малюсенькую ванную впихнуть стиралку, мойдодыр по двум сторонам и ванная стоит поперёк. Ванную занесли раньше, чем установили дверь. 60 см полотно нормально смотрится, и пройти спокойно можно.
LenIva
https://jquarter.ru/forum/index.php?topic=2264.0
Входную решил сделать больше, чем остальные, т. е. сделал 100 см (дверь чуть шире на 90 см полотна) проём. На другие двери будет 90 (обычные двери 80 см). Теперь осталось разметить дверь двойные 70+70, в зал хочу сделать большой проём.
Виктор Олф
https://www.forumhouse.ru/threads/318884/
Безусловно, у всех дверей есть нюансы, считаю наиболее универсальной формулой, где за точку отсчёта берётся не размер полотна, не габарит коробки, а «световой проход». При стандартных размерах он всегда равен по ширине 60/70/80 см, по высоте 200/205/210 см. Само полотно, в зависимости от конструкции, может быть иных размеров, не говоря уже о габаритах по крайним точкам короба и наличников. В отличие от них, световой проход всегда стабилен. Далее универсальный расчёт такой: ширина проёма = ширина светового прохода + 10 см высота проёма = высота светового прохода + 5 см. Практически любая дверь становится в такой проём.
vago083050
http://www.mastergrad.com/forums/t176063-razmer-proema-pod-mezhkomnatnuyu-dver/?page=2
Под дверь 80 см проём должен быть 89,5 см. Нижний допуск (7 см) использовать не рекомендую. Коробка получается впритык, нет пространства для пены, а она не только монтажное значение имеет, но и шумо — и теплоизолирующее. И если проём не строго вертикальный (а это обычное дело), его всё равно придётся рубить. Лучше, если это будет сделано заранее. Кроме того, дверь в притирку не поставить, так как нужен зазор на расширение материала.
alt
http://www.mastergrad.com/forums/t176063-razmer-proema-pod-mezhkomnatnuyu-dver/
Короб — такая же важная часть дверного блока, как и наличники. Он позволяет закрепить полотно в проёме, поэтому к его размерам предъявляются отдельные требования.
Ширина дверных коробок межкомнатных дверей
Ремонт, особенно капитальный, сложный процесс. Необходимо заранее продумать многие моменты, чтобы потом не пришлось переделывать, подгонять. Одним из важных элементов при монтаже дверного блока квартиры, является ширина дверной коробки межкомнатной двери. Для этого, чтобы дверь установить, нужно подготовить нужных размеров проем в стене. Остановимся на вопросе, как правильно рассчитать ширину проема, коробки и дверного полотна. Это важно, с точки зрения нормального функционирования двери в целом.
Схема с размерами дверной коробки межкомнатной двери
Основные параметры дверного блока
Большинство производителей при серийном производстве двери, коробки, наличников ориентируются на принятые в данной стране стандарты. Они отражены в ГОСТах (ГОСТ 6629-88) и строительных нормах и правилах (СНиП). Стандарт подходит для домов, которые строят, опираясь на эти нормы. Но они носят скорее общий рекомендательный характер.
Чертеж и эскиз дверной коробки
Проблема нестандартных проемов часто возникает при реконструкции старых домов, особенно с большой высотой потолков, к примеру, в «сталинках». Необходимо будет либо подгонять проем до стандартов, либо тоже заказывать двери индивидуально.
Стандартная ширина проема, коробки, дверного полотна
Несведущие люди часто путают понятия «ширина дверного проема» и «ширина коробки». На этот момент нужно обратить внимание, так как это может привести к тому, что придется менять приобретенный комплект дверного блока.
Таблица размеров дверного полотна
Основные термины и обозначения:
- Ширина — расстояние между боковинами прорезанного в стене отверстия для установки коробки.
- Высота — измеряется от пола до окончания этого проема.
- Глубина — толщина стены в проеме.
Представляет собой рамочную конструкцию, в которую монтируется дверь.
- Ширина — расстояние между стойками.
- Высота — длина стоек.
- Глубина — ширина бруса стоек.
Дверное полотно.
Стандартное полотно имеет прямоугольную форму. Соответственно размеры прямоугольника и будут шириной и высотой, а глубина толщиной двери.
Нормативные размеры
Существует несколько стандартов, которых стараются придерживаться строители. При их соблюдении проблем с установкой дверного блока не возникает.
Стандартные размеры дверного полотна
- Ширина дверного проема должна быть на 70 мм больше ширины полотна дверей. Это нужно для того, чтобы оставалось пространство для установки дверных полотен и их функционирования: 20 мм со стороны петель, 40 мм с открывающейся стороны.
Схема конструкции коробки и дверного полотна
Чертеж дверной коробки с зазорами
При монтаже короба его выставляют по уровню и заклинивают с помощью распорок из щепы бруса. Затем щель запенивают. Вовнутрь коробки тоже ставят распорки, так как пена, расширяясь, может выдавить стойки и перемычки.
- Определяя высоту короба, необходимо учитывать порог, в этом случае коробка должна быть выше на 80 мм. Без него — на 50 мм. Дверь в этом случае на 25 мм должна быть установлена выше на 25 мм от пола и горизонтальной верхней планки короба. Стандартная высота дверного полотна 2 тыс. мм, 1900 мм.
Основой для расчета станет дверное полотно. Стандартная ширина размера дверей: 600; 700; 800; 900 мм.
Приведем пример расчетов короба:
Дверное полотно 80 см / 800 мм по ширине и 200 см / 2 тыс. мм по высоте.
Ширина дверной коробки: 800 + 70 = 870 мм
Высота: 2000 + 80 / 50 = 2080 /2050 мм
Воспользовавшись таким несложным расчетом, вы без труда получите правильные размеры всех составляющих дверного блока. Такой несложной формулой пользуются при расчете и нестандартных размеров полотен.
Таблица типовых размеров дверных проемов
При расчете металлической входной двери используют те же правила, только минимальное расстояние от короба до проема должно составлять не менее от 150 до 200 мм, учитывая ширину коробки. Эти же параметры рекомендованы для установки двухстворчатых дверей. При монтаже тяжелых бронированных дверей приходится усиливать проем металлом. Расчет в этом случае должен быть особенно тщательным.
Проект и чертеж с размерами двухстворчатых дверей
Отдельно стоит остановиться на деревянных полотнах, стандартных и изготовленных по индивидуальному заказу. Большая часть дверных блоков из массива имеют более толстые стенки короба. Особенно это касается широких дверей на 800; 900 мм, двустворчатых конструкций. Мастера изготавливают массивные коробки, чтобы усилить каркас. К тому же такой короб гармонично сочетается с тяжелым деревянным массивом. Этот момент следует учитывать при расчете дверного проема.
Как поступить если ширина короба не соответствует габаритам проема
Когда проем меньше нужных габаритных размеров, то в этом случае его просто расширяют. В зависимости от материала стен используют разные методы:
- В бетоне сначала проделывают перфоратором отверстия по периметру, потом намечают деформационный шов и выбивают часть стены.
процесс расширения дверного проема
Смотрите в видео: правила замера дверных проемов перед покупкой межкомнатных дверей.
В том случае, когда проем больше, его наращивают. Проще всего это сделать при помощи гипсокартона, установленного на перегородочный профиль. Дополнительно периметр часто усиливают брусом. Нужно отметить, что ширина дверных коробок межкомнатных дверей, соблюдения правильных монтажных зазоров, имеет весомое значение при установке дверного блока.
Как установить коробку для межкомнатной двери
Коробка для межкомнатной двери представляет собой неподвижную основу из деревянных стоек и перекладины, на которую крепится дверная створка при помощи петель. Перед покупкой необходимо знать какой толщины и ширины должна быть данная конструкция. К тому же нужно учесть, будете вы собирать ее из своих пиломатериалов или купите готовые детали в комплекте с дверным полотном. Более подробно о сборке коробки для межкомнатной двери, вы узнаете из данной статьи и просмотрев ознакомительное видео.Как рассчитать параметр дверного проема
Перед тем как установить дверную коробку, нужно рассчитать параметры проема: ширину, толщину, высоту. Размеры дверного проема, будут зависеть от размеров межкомнатной двери. Для начала определяемся с ее размерами. Производители предлагают размеры дверного полотна высотой 200 см, а шириной от 60 до 90 см. При этом ширина коробки получится больше створки на 7 см, а высота на 4,7 см. Толщина стандартных коробок 25, 40 и 60 мм, но эти цифры могут меняться в зависимости от производителя. Например, для дверного полотна, размером 60 х 200 см, коробка будет иметь габариты 67 х 204,7 см.
Внимание! Лучше всего выбирать толщину дверной коробки равную толщине проема. Иначе придется устанавливать расширитель или отпиливать ее вдоль.
Например, чтобы рассчитать дверной проем для полотна шириной 80 см и толщиной 4 см, нужно прибавить к 80 толщину коробки и монтажные зазоры (1,5-2 см), не забывая, что они имеются с каждой стороны. Расчет дверного проема (Шдп) для дверного полотна шириной 80 и толщиной 4 см:
Шдп=80+4+4+1,5+1,5= 91 см
Высота рассчитывается как сумма высоты двери, плюс высота порога, толщина коробки и монтажного зазора. Обычно пороги делают только для входных дверей, поэтому для расчета межкомнатных, этот показатель можно не учитывать.
Монтаж коробки
В целях экономии можно купить только дверной полотно, а коробку установить самостоятельно. Процесс сборки состоит из следующих операций:
- Полотно двери укладываем на ровное горизонтальное место и обкладываем его деревянными брусками. В торцы, между притворами и дверью, укладываем листок картона, чтобы создать зазор. Затем выравниваем торцы брусьев и верха двери.
- Прикладываем к торцам стоек верхний горизонтальный брус. Выравниваем его по одной стороне, а по краю другого карандашом отмеряем длину планки. Излишки отпиливаем лобзиком или ножовкой. А затем на внутренней части делаем разметку притворной части.
- Далее на отмеченной зоне делаем распилы, используя ножовку для металла, для того чтобы срез был аккуратным. Обрабатываем место среза стамеской или ножовкой.
- После этого можно просверлить отверстия в перекладине и прикрутить ее саморезами к вертикальной стойке.
- Затем отмечаем расположение петель. Навесы необходимо устанавливать на расстоянии 20 см от верха и 21 см от низа. Прикладываем петли к брусу и обводим их по контуру карандашом.
- При помощи фрезерной установки или стамесок делаем платформу для крепления петель и посадочное место под нижнюю дверную петлю. Навешиваем их на стойки при помощи саморезов.
- Измеряем длину проема и отмечаем данное расстояние на стойках, излишки нужно отпилить.
- Теперь можно приступить к установке конструкции в проем. Для этого аккуратно поднимаем коробку с пола и устанавливаем его на место. Если она не вписывается в отверстие, то ее положение можно отрегулировать при помощи деревянных колышков.
- Уровнем или отвесом, проверяем горизонтальность верхнего бруса, перпендикулярность стоек и вертикальность самой коробки. После этого, ее можно закреплять дюбелями к откосам.
- Если коробка прочно встала в проем, можно извлечь временные колышки и распорки и отпилить выступающие части клиньев.
На этом монтаж дверной коробки готов. Остается прикрутить петли, навесить дверное полотно и установить наличники. При небольшом опыте столярных работ и терпении, можно сэкономить деньги на установочных работах, главное правильно сделать все замеры и придерживаться инструкции.
Как собрать дверную коробку: видео
Как правильно вычислить размер межкомнатных дверей с коробкой, стандарт ГОСТ
При ремонте необходимо уделить должное внимание установке межкомнатных дверей. Безусловно, есть определённые стандартные габариты, но чтобы не пришлось разрушать стену или менять уже выбранное полотно, необходимо изучить все нюансы. В этом деле важно правильно вычислить размеры проёма, знать стандарт и особенности разных типов конструкций. На современном рынке можно встретить продукцию отечественную и зарубежную, важно помнить, что ГОСТы отличаются.
ГОСТ показатели размера полотна
Параметры дверного полотна необходимо учитывать при вычислении проёма. Двери и коробка имеют утверждённые государством стандартные размеры.
Таблица ГОСТ межкомнатных полотен:
Вид помещенияШирина смВысота смГлубина проема смкухня702007Санузел, ванна55-60190-2005-7комната802007-20Гостиная (двустворчатая дверь120 (два полотна)2007-20
Если ранее проводились ремонтные работы, стены выравнивались или демонтировались, глубина может не соответствовать вышеизложенным данным.
Рынок предлагает большой выбор дверей и комплектующих от отечественных и зарубежных производителей. Чаще всего продукция имеет высоту 200 см, ширину 60, 70, 80 см (реже 190 на 60, 70,80 см). Толщина дверной коробки начинается от 15 мм и до 45мм. Зная стандарты и размеры дверного проёма можно выбрать оптимальный вариант. Бывают ситуации, когда игнорирование параметров заканчивается расширением проёма или возвращением только что приобретённого полотна.
При покупке полотна зарубежной фирмы необходимо особо внимательно изучить размеры ведь их стандарт несколько отличается.
Формула замера дверного проема
Если необходимо сделать проём, а с дверью вопрос еще не решён, необходимо заранее учесть такие моменты:
- Габариты полотна: высота и ширина,толщина.
- Габариты дверной коробки: ширина и толщина.
- Ширина наличников.
Высота (В дв) – 200 см
Ширина (Ш дв) –70 см
Толщина (Т к) – 3 см
Блок двери (Бд) – 2 см
- Высота порога (В п) – 2 см
Формула вычислений ширины дверного проёма:
Ш дв +2*Т к+Мз+2*Бд = 70+2*3+1+2*2=81 см
Формула вычислений высоты проёма:
В дв + В п +2*Т к= 200+2+2*3=208
Вывод: для дверного полотна 200 на 70 необходим дверной проём 208 на 81.
Глубина проёма: стандарт 7,5 см, поэтому производители делают дверные коробки под эту величину. Если полотно уже куплено: придётся изготовить коробку индивидуально, шире – использовать добор. Поэтому лучше провести вычисления заранее.
Алгоритм измерения величины дверного проёма
Чтобы правильно замерить размер проёма, необходимо соблюдать последовательность действий:
- Измерить высоту от пола до верха (если проем не ровный, нужно замерять в районе сужения), до середины наличника.
- Ширина – от середины левого до середины правого наличника (учитывая сужение).
- Глубина измеряется в верхней, средней и нижней части (чтобы найти саму широкую величину).
Положительный результат зависит от точности измерений.
Таблица вычисления дверных проёмов стандарт:
| Ширина см | Высота см | Вид комнаты | Стандарт |
| 62 – 65 | 195 – 197 | Туалет, ванна | 55*190 |
| 67 – 70 | 195 – 197 | Туалет, ванна | 60*190 |
| 67 – 70 | 205 – 207 | Туалет, ванна | 60*200 |
| 77 – 80 | 205 – 207 | Кухня | 70*200 |
| 87 – 90 | 205 – 207 | Комната | 80*200 |
| 97 – 100 | 205 – 207 | Комната | 90*200 |
| 127 – 130 | 205 – 207 | Гостиная (двустворчатая дверь) | 2*60*200 |
Параметры коробки и дверного полотна
Габариты коробки межкомнатных дверей должны соответствовать размерам полотна, учитывая зазоры.
Рама должна быть пропорциональна толщине стены. Если остаётся свободное место используют доборы, которые перекрывают просветы.
Добор – это стойки по периметру коробки для расширения дверного короба.
Главным элементом всё же остаются сами двери. Стандарт определен опираясь на такие параметры:
- Высота полотна межкомнатных дверей: 190-200 см. Иногда необходим индивидуальный подход. При расчётах необходимо учесть зазор между основанием и полом, чтобы полотно свободно открывалось и закрывалось.
- Ширина зависит от комнаты.
- Толщина – разная (зависит от требований производителя), стандарт – 4,5 .
Особенности двустворчатых дверей
Для гостиной удачным решением в дизайне интерьера будет установка двустворчатых межкомнатных дверей. Внимание, при вычислении размеров величины увеличить в два раза.
Что касается ГОСТа: стандартом является ширина от120 до 150 см. Этот диапазон позволяет получить удобную полноценную и функциональную конструкцию. Толщина – 4,5 см.
Подробно про замер и установку:
Если проём не соответствует заданной величине и не поддаётся расширению необходимо следующее:
- Одна створка находится в зафиксированном положении и используется по необходимости.
- Ширина этой сворки:1/2 или 1/3 от ширины стандартной межкомнатной двери.
- Вторая – полноценная дверь.
Оба варианта имеют большой плюс в функциональности: улучшают проходимость: легко вносить, выносить мебель.
Что касается высоты: если проём больше заданных стандартов (размер: 200-210 см) вверху крепится специальная неподвижная планка.
Максимальные размеры полотна
Самые широкие двери стандарт – 90 см. Только ограниченное количество производителей выпускают продукцию таких габаритов. В новостроях такие параметры межкомнатной дверной коробки не используют, потому, как конструкция смотрится нелепо или громоздко. Всё же такие размеры встречаются:
Самый ходовой материал для межкомнатных габаритных (и не только) полотен: МДФ.
Стандартный размер двери | Наружная дверная коробка Размер
Если вам нужна новая дверь для функциональных или декоративных целей, размер определенно имеет значение. Это верно для входных дверей, межкомнатных дверей или вообще любой двери. Хотя есть двери стандартного размера, размер, который вам нужен, зависит от множества факторов. Узнайте больше о размерах дверей и о том, как их измерить, чтобы убедиться, что вы приняли правильное решение при покупке новой двери.
Стандартные размеры дверейСтандартный размер двери зависит от того, о каком типе двери вы говорите.Осмотрите свой дом. Размер дверей, ведущих во внутренние комнаты, скорее всего, отличается от размера двери в дверных коробках наружной двери.
Обычно входные двери имеют ширину 36 дюймов и высоту около 80 дюймов. Глубина может варьироваться в зависимости от материала. Однако у вас могут быть двери и намного выше. Они могут быть визуально привлекательными в домашнем дизайне с высоким или большим подъездом или соборным потолком.
Двери с двойным входом (также называемые французскими дверями) могут быть не такими широкими. Их два, и общая внешняя дверная коробка уже будет шире, чем у стандартной двери.У вас также могут быть индивидуальные входные двери с уникальными размерами.
Межкомнатные двери предлагают еще больше стандартных вариантов с шириной от 18 до 36 дюймов в зависимости от использования двери и дизайна помещения. Возможно, вам не понадобится такая широкая дверь для небольших кладовых, как для спален или ванных комнат, где люди должны проходить.
Закон о справедливых жилищных условиях требует минимальной ширины 32 дюйма как входных, так и внутренних дверных коробок, предназначенных для прохода людей.Это сделано для обеспечения доступности для широкого круга людей и мобильных устройств. Это может быть важная цифра, о которой следует помнить, если вы планируете новый дверной проем.
Как измерить дверьКогда пришло время заменить дверь по какой-либо причине, лучше не делать предположений. Не заказывайте стандартную дверь, потому что ваша выглядит нормально. Сделайте несколько замеров, чтобы убедиться, что вы на правильном пути при покупке дверей.
Лучший способ получить точные размеры запасной двери — это измерить уже имеющуюся дверь.С помощью рулетки тщательно измерьте ширину, высоту и глубину двери.
Измерьте расстояние от верха двери до низа двери — , а не от пола до верха двери. Если вы сделаете это, вы сделаете порог и зазор по размеру вашей двери, что может вызвать проблемы с установкой.
Если в подъезде еще нет двери, необходимо измерить внутреннюю или внешнюю дверную коробку. Дверные коробки не всегда получаются ровными, поэтому снимите три измерения ширины.Возьмите по одной в нижнюю, среднюю и верхнюю части — используйте наименьшее число в качестве ширины.
Измерьте высоту таким же образом. Сделайте два измерения — по одному с каждой стороны двери — и используйте более короткое измерение.
Наконец, измерьте то, что называется скидкой. Это паз в дверной коробке, через который дверь должна прилегать заподлицо. Глубина фальца обычно равна максимальной глубине двери, которую вы можете туда поместить.
Используя эти размеры, выберите двери, которые находятся ближе всего к этим числам, но не выходят за их пределы.Например, если измеренная вами высота составляет 80,2 дюйма, вам может потребоваться дверь 80 дюймов, но не дверь 81 дюйм.
Получите помощь с новой дверью сегодняПодгонка и отделка новой двери важны. Двери должны быть такими, чтобы они закрывались правильно и легко. Наружные двери должны прилегать заподлицо, чтобы уменьшить сквозняки и повысить эффективность отопления и охлаждения в доме.
Существует ли стандартный размер двери? Да, но это не обязательно то, что вам нужно. За помощью в выборе двери, которая идеально подходит для вашего дома и функциональных потребностей, обращайтесь в компанию Thompson Creek.
Как правильно измерить дверь с первого раза
Узнайте, как измерить размер двери
Измерение размера двери звучит довольно просто, не так ли? Достаньте рулетку и проверьте высоту и ширину вашей старой двери. И да и нет. Когда дело доходит до измерения дверей, на самом деле это немного больше.
Какие размеры вам необходимо снять, будет зависеть от того, заменяете ли вы только дверь или также заменяете раму и петли.
Изучите , как измерить дверь , следуя этим советам:
Межкомнатная дверная плита
Если ваша рама и петли в хорошем состоянии и вы хотите сохранить их, вы можете заменить только дверь (известную как дверная плита) сам.
Чтобы измерить замену внутренней двери:
- Измерьте дверь по горизонтали в трех местах: вверху, в середине и внизу. Запишите наименьшее измерение как ширину двери.
- Измерьте высоту двери по вертикали в трех точках: слева, по центру и справа. Запишите самое маленькое измерение как высоту двери.
- Измерьте толщину двери. (Стандартная толщина внутренней двери составляет 1–3 / 4 дюйма).
- Измерьте расположение всех 3 петель.Чтобы получить эти размеры, измерьте расстояние от верха двери до верха каждой петли.
- Измерьте ширину и высоту каждой петли.
- Измерьте расстояние от верха дверцы до центра отверстия (отверстие для ручки). Для наиболее точного измерения снимите дверную ручку и ригель перед измерением.
- Измерьте расстояние от центра отверстия (отверстия дверной ручки) до ближайшего края двери.
Предварительно подвешенная система / сетчатая рама
Если дверная коробка повреждена или вы хотите заменить ее по эстетическим причинам, вам также необходимо измерить приблизительные размеры проема.
Чтобы подготовиться к измерению, сначала с помощью монтировки и шпателя аккуратно снимите накладку вокруг отверстия. Используйте шпатель, чтобы удалить изоляцию между краем грубого проема и дверной плитой. Это позволит проводить более точные измерения.
- Как и при простом измерении дверной плиты, измерьте горизонтально поперек самой дверной плиты. Измерьте 3 точки: верхнее, среднее и нижнее. Запишите наименьшее измерение как ширину дверного полотна.
- Также, как и при простом измерении дверной плиты, измерьте высоту самой дверной плиты по вертикали. Измерьте в 3 местах: слева, по центру и справа. Запишите самое маленькое измерение как высоту двери.
- Сделайте 3 горизонтальных измерения грубого отверстия (верхнее, среднее и нижнее). Запишите наименьшее измерение как приблизительную ширину раскрытия.
- Сделайте 3 вертикальных измерения чернового проема (левая сторона, центр, правая сторона). Запишите самое маленькое измерение как приблизительную высоту проема.
- Измерьте толщину дверного косяка. Запишите это измерение как ширину косяка.
После того, как вы получите эти измерения, вы будете подготовлены с информацией, необходимой для выбора дверей правильного размера. Свяжитесь с нами, чтобы сообщить свои размеры, и мы будем рады предоставить вам расценки на один из наших многих популярных стилей дверей.
The Door Guys Houston Texas # 1 Door Install Company
Часто задаваемые вопросы о дверях и установкахQ: Как мне решить, какая входная дверь лучше всего подходит для меня?
A: Вам нужно сузить выбор до тех, которые могут удовлетворить ваши потребности.Прежде чем выбрать входную дверь или дверную систему, необходимо учесть несколько ключевых моментов:
- Вы предпочитаете окрашенную или окрашенную отделку?
- Насколько сильно подвержены погодным условиям (например, солнце, дождь) ваша запись? В районе Хьюстона жарко и влажно или холодно и влажно. Очень важно учитывать, сколько солнца и влаги будет подвергаться ваша дверь.
- Как долго вы будете оставаться в своем доме?
- Какой стиль подходит как для дома, так и для района, в котором вы живете? Следует учитывать правила соседства ТСЖ.
- Какие у вас проблемы с бюджетом?
A. Да, мы можем помочь вам найти дверь и помочь быстро установить ее. Предлагаем круглосуточную службу экстренной помощи. Мы не предлагаем круглосуточную службу экстренной помощи прямо сейчас, мы надеемся предложить ее в будущем.
Q: Что такое «подвесная» дверь?
A: Подвесная дверь — это просто дверь, которую навешивают на петлях и прикрепляют к новому косяку или раме перед установкой в проем.Обычно он подготавливается для набора замков и может также включать другие элементы, такие как порог, уплотнитель, внешняя отделка и дверные ограничители.
В: Что такое дверь «до установки» или «до установки»?
A: Предварительно установленная дверь — это дверь, которая имеет надлежащий размер, имеет фаску, механическую обработку для петель и просверливает замок для установки в дверной косяк или раму, которая уже установлена в проем. Обычно это делается путем «подбора» размеров существующей двери, при условии, что она соответствует проему.
Q: Я заменяю свои существующие двери.Что лучше: двери «prehung» или «prefit»?
A: Использование подвесных дверей зависит от нескольких факторов:
- Во-первых, заменяете ли вы дверные коробки?
- Какой формы существующие косяки; они поцарапаны или помяты
- Все ли ваши двери в настоящее время подходят и работают должным образом?
Если же
- Вы меняете только двери, а не дверные коробки
- Ваши косяки в хорошем состоянии
- Ваши двери хорошо подогнаны
Q: Как измеряются двери?
A: Двери измеряются в футах и дюймах следующим образом: стандартная дверь шириной 36 дюймов, высотой 80 дюймов и толщиной 1-3 / 4 дюйма называется 3/0 («три о», что означает 3 фута, 0 дюймов. ) x 6/8 («шесть восемь», что означает 6 футов 8 дюймов) x 1–3 / 4 дюйма.
В: Как определить, является ли дверь правой или левой?
A: Стоя сбоку от проема, в который открывается дверь, посмотрите на петли.Если они справа, то это правая дверь. Если они слева, это левая дверь.
Q: Каков приблизительный размер открывания двери с предварительным подвесом?
A: Для одинарных дверей добавьте 2 дюйма к ширине двери и 2-1 / 2 дюйма к высоте двери. Например, стандартная дверь 3/0 x 6/8 потребует грубого открытия 38 x 82-1 / 2 дюйма. Для пар дверей требуется двойная ширина двери плюс 2 дюйма, а также дополнительные 1/2 дюйма.
A: для стандартной пары дверей 3/0 x 6/8 с астрагалом потребуется грубый проем 74-1 / 2 «x 82-1 / 2».Астрагал представляет собой лепнину, состоящую из полукруглой поверхности, окруженной двумя плоскими плоскостями (галтелями). Астрагал обычно используется для уплотнения между парой дверей.
Q: Как определить «ширину косяка» для предварительно подвешенной двери?
A: Определение ширины косяка для предварительно подвешенной двери может быть сложной задачей. Для большинства внутренних работ это просто вопрос измерения общей толщины стен. Например, стандартная стена, построенная из 2 х 4 шпилек и 1/2 «гипсокартона с обеих сторон, будет иметь толщину 4-9 / 16», то есть 3-9 / 16 «(чистая ширина 2 х 4 шпильки) плюс 1 дюйм (1/2 дюйма гипсокартона умножить на 2 стороны).Чтобы определить толщину стены существующей межкомнатной двери, вам необходимо измерить общую ширину косяка без учета наличников.
Для наружных дверей определение ширины косяка или рамы зависит от того, какой тип сайдинга и внешней отделки используется. В ситуациях, когда внешняя отделка накладывается на внешний сайдинг, достаточно просто измерить всю толщину стены. В других случаях, когда сайдинговый материал (например, штукатурка) стыкуется с внешней отделкой, толщина наружного материала не будет включена в ширину косяка.
Q: Какая информация мне понадобится для заказа подвесной двери?
A: Контрольный список:
Неровное открытие или номинальный размер двери
- Ширина откоса или толщина готовой стенки
- Фасон двери, виды и отделка
- Вид и цвет петли
- Выбранный комплект замков (для правильной обработки двери)
- Распашная дверь
- Дополнительно для входных дверей
- Необходима внешняя отделка и сайдинг для дома и / или порога
- Дистанционный настил входит в дверной проем
A: Сегодня в столярной промышленности становится все больше и больше материалов для окраски.Композитный материал, МДФ, становится стандартом для окраски дверей и молдингов из-за его превосходных свойств окраски и низкой стоимости. Шовная сосна — еще один привлекательный вариант из-за простоты монтажа, довольно невысокой стоимости и широкого выбора доступного материала. Тополь — еще одна древесина лиственных пород по умеренной цене, которая отлично подходит для использования в качестве материала для окраски, особенно для высококачественной индивидуальной работы.
Двери из клена / МДФ (то есть планки из клена и перила с панелями МДФ) — лучшее дерево.Двери из пихты Дугласа с вертикальной структурой продолжают оставаться популярными в лакокрасочных материалах из-за их широкого выбора и разумной стоимости. Двери из стекловолокна и стали предлагают потребителю альтернативу по умеренной цене, особенно в условиях высокой экспозиции.
Q: Можете ли вы предоставить двери, молдинги или другие столярные изделия на заказ?
A: Нет, но мы можем помочь вам найти дверь и материалы.
В. Могу ли я получить список цен?
A. Нет. Индивидуальный характер нашего продукта делает непрактичным создание исчерпывающего прайс-листа.Мы будем более чем рады предоставить вам подробное ценовое предложение.
Размеры дверей | Стандартные размеры дверей
Размер двериВ Великобритании существует множество стандартных размеров дверей, и зачастую понимание того, как правильно проводить измерения, может быть трудным и загадочным. В BSO мы предлагаем основной ассортимент дверей самых разнообразных размеров со склада. На этой странице мы объясняем стандартную высоту внутренней двери и стандартную ширину внутренней двери.
Внутренние стандартные размеры дверей UK
- 1981 x 457/533 x 35 мм — размер двери, обычно наиболее популярный для использования в шкафах или шкафах
- 1981 x 610/686 x 35 мм — размер двери используется там, где может быть ограниченное пространство на стене и требуется небольшая подходящая дверь.
- 1981 x 762 x 35 мм — часто упоминаемая как дверь 2 фута 6 дюймов, является наиболее типичным размером внутренних дверей в Англии и Уэльсе.
- 1981 x 838 x 35 мм — в большинстве случаев обеспечивает необходимую ширину проема для доступа инвалидных колясок в соответствии со спецификацией мобильности части «M».Этот размер двери также известен как 2 фута 9 дюймов.
Стандартный метрический размер двери
Внутренние двери метрического размера становятся все более популярными и широко используются на большей части Шотландии и на континенте. Иногда в старинных помещениях могут присутствовать двери нестандартного размера, главное отличие состоит в увеличении высоты двери на 2040 мм и толщине двери на 40 мм.
- 2040 x 526/626/726/826/926 x 40 мм
Все стандартные и метрические двери для Великобритании размером обычно доступны как сопоставимые противопожарные двери, единственная дополнительная особенность — увеличенная толщина двери до 45 мм.Для достижения его огнестойкости требуются дополнительные материалы компонентов, в результате чего толщина 45 мм. Обратите внимание, что вам нужно будет убедиться, что ваши рамы, скобяные изделия и вспучивающиеся уплотнения также соответствуют требованиям пожарной сертификации дверей.
Таблица преобразований размеров дверей
Ознакомьтесь с нашей полезной таблицей преобразования размеров дверей. Если вы привыкли к британским меркам, таблица поможет вам с метрическими эквивалентными размерами дверей.
ВЫСОТА И ШИРИНА | ||
Метрическая система (мм) | Imperial (дюймы) | Имперские единицы (футы и дюймы) |
1981 x 457 | 78 ″ x 18 ″ | 6′6 ″ x 1′6 ″ |
1981 x 533 | 78 ″ x 21 ″ | 6′6 ″ x 1′9 ″ |
1981 x 610 | 78 ″ x 24 ″ | 6′6 ″ x 2′0 ″ |
1981 x 686 | 78 ″ x 27 ″ | 6′6 ″ x 2′3 ″ |
1981 x 711 | 78 ″ x 28 ″ | 6′6 ″ x 2′4 ″ |
1981 x 762 | 78 ″ x 30 ″ | 6′6 ″ x 2′6 ″ |
1981 x 838 | 78 ″ x 33 ″ | 6′6 ″ x 2′9 ″ |
1981 x 915 | 78 ″ x 36 ″ | 6′6 ″ x 3′0 ″ |
1981 x 1067 | 78 ″ x 42 ″ | 6′6 ″ x 3′6 ″ |
1981 x 1168 | 78 ″ x 46 ″ | 6′6 ″ x 3′10 ″ |
1981 x 1220 | 78 ″ x 48 ″ | 6′6 ″ x 4′0 ″ |
1981 x 1372 | 78 ″ x 54 ″ | 6′6 ″ x 4′6 ″ |
1981 x 1524 | 78 ″ x 60 ″ | 6′6 ″ x 5′0 ″ |
2032 x 813 | 80 ″ x 32 ″ | 6′8 ″ x 2′8 ″ |
2134 х 915 | 84 ″ x 36 ″ | 7′0 ″ x 3′0 ″ |
2040 x 526 | 80 1⁄4 ″ x 20 11⁄16 ″ | 6′8 1⁄4 ″ x 1′8 11⁄16 ″ |
2040 x 626 | 80 1⁄4 ″ x 24 5⁄8 ″ | 6′8 1⁄4 ″ x 2′0 5⁄8 ″ |
2040 x 726 | 80 1⁄4 ″ x 28 5⁄8 ″ | 6′8 1⁄4 ″ x 2′4 5⁄8 ″ |
2040 x 826 | 80 1⁄4 ″ x 32 1⁄2 ″ | 6′8 1⁄4 ″ x 2′8 1⁄2 ″ |
2040 x 926 | 80 1⁄4 ″ x 36 7⁄16 ″ | 6′8 1⁄4 ″ x 3′0 7⁄16 ″ |
Какая стандартная высота внутренней двери в Великобритании?
В Англии и Уэльсе высота стандартной двери составляет 1981 мм (6 футов 6 дюймов).
Scotland обычно использует метрический эквивалент. Средняя высота дверей в Шотландии немного выше — 2040 мм.
Какая стандартная ширина межкомнатной двери в Великобритании?
В Англии и Уэльсе средняя ширина внутренней двери составляет 762 мм (2 фута 6 дюймов).
Scotland обычно выбирают метрический эквивалент, который немного меньше — 726 мм.
Как измерить замену внутренней двери?
Чтобы измерить замену внутренней двери, вам нужно будет измерить внутреннюю часть дверной коробки по ширине, а затем найти самое широкое измерение, чтобы определить необходимую ширину двери.
Чтобы измерить высоту двери, измерьте внутреннюю часть вертикальной стороны рамы, и наибольшая длина определяет необходимую высоту.
Насколько широк стандартная внутренняя дверная коробка для Великобритании?
Самая типичная ширина дверной коробки в Англии и Уэльсе — 762 мм. В Шотландии наиболее распространенная ширина дверной коробки составляет 726 мм.
Дверные коробки могут поставляться в собранном виде или в виде составных частей, которые могут быть обрезаны по размеру, чтобы соответствовать всем размерам двери.
Поскольку размер требуемой коробки будет зависеть от размера проема, стандартного размера дверной коробки в Великобритании не существует.Мы всегда советуем проконсультироваться с профессиональным столяром, так как установка дверной коробки сложна и требует тщательной точности.
Как измерить двойную дверь?
Чтобы измерить двустворчатую дверь, сначала необходимо измерить размер дверного проема. Начните с измерения размера проема и разделите ширину на два, чтобы получить приблизительную ширину каждой двери. Если рама не установлена, вам нужно будет учесть это (обычная ширина рамы составляет 30 мм с каждой стороны) и допуск для установки (около 2-3 мм с каждой стороны).
Ширина проема — Ширина рамы (например, 60 мм) — Регулировка фурнитуры (6 мм) = ширина двойной двери / 2 = ширина одной двери
При установке двустворчатых дверей необходимо также учитывать, как вы хотите, чтобы двери сходились посередине.
Установка двустворчатых дверей — не всегда простая задача, и мы всегда рекомендуем использовать опытных столяров, которые помогут вам добиться идеального результата.
Какой средний размер двери в спальню?
Средняя дверь спальни аналогична любой внутренней двери.Чаще всего вы встретите дверь спальни высотой 1981 мм или 6 футов 6 дюймов.
Руководство по размеру дверей | Таблица преобразования размеров дверей и часто задаваемые вопросы
Как измерить дверь
Понимание размеров и размеров дверей
При покупке новых дверей для новых клиентов часто бывает большим сюрпризом то, что двери на самом деле поставляются в огромном количестве размеров. Есть некоторые стандартные размеры, которые используют почти все поставщики, однако из опыта мы узнали, что особенно на рынке Великобритании в некоторых из ваших домов могут быть двери странного размера!
В то время как большинство поставщиков дверей обычно придерживаются отраслевых стандартов, у нас есть несколько поставщиков, таких как XL Joinery, LPD и Deanta, которые могут предоставить нам двери индивидуального размера для большинства их стилей дверей, и мы можем процитировать вас. основу для этого.Подробнее о дверях нестандартных размеров читайте ниже.
При покупке новых дверей отправной точкой всегда является измерение проема, который вы должны заполнить (, где ваша текущая дверь — ). Большинство наших дверей можно обрезать / подрезать в соответствии с имеющимся у вас проемом, но этот порог для регулировки ваших дверей отличается от производителя к производителю. Пожалуйста, посетите нашу страницу помощи и советов, чтобы узнать о припусках на обрезку всех наших дверей.
При определении того, какой размер вам потребуется, очень важно помнить, что вокруг вашей двери должен быть зазор 2-3 мм, чтобы она могла открываться и закрываться, это также гарантирует, что ваша дверь не потрескается / не деформируется во время зимние месяцы, когда двери склонны к небольшому вздутию из-за перепадов влажности.Вы можете поспорить, что дверная коробка не совсем правильная и квадратная — в конце концов, она была построена человеком, а не компьютером! Мы рекомендуем вам измерять каждый проем, чтобы быть максимально точным, потому что при покупке нескольких дверей для одного дома проемы могут иногда отличаться в разных частях дома, в зависимости от того, как дом был построен.
Измерение двери
Инструменты
Измерительная лента — единственный важный инструмент, который вам понадобится для работы, но если вы действительно заинтересованы в точности, вы можете вместо этого приобрести лазерный измеритель.
Если у вас нет рулетки или лазерной меры, ваш смартфон подойдет в крайнем случае! Такие приложения, как рулетка и EasyMeasure из магазина приложений Apple, работают отлично. Для пользователей Android мы рекомендуем Google — Measure или приложение AR Ruler.
Шаг 1 — Измерьте ширину
Ширину двери можно определить, проведя рулеткой вдоль одной стороны двери слева направо. Убедитесь, что вы включаете только саму дверь и никаких других деталей, таких как уплотнитель.Запишите номер.
Попробуйте еще раз, но в другой точке двери — некоторые старые двери не имеют идеально прямоугольной формы, поэтому вам следует выполнить несколько измерений, а затем использовать наибольшее число в качестве ширины двери.
Шаг 2 — Измерьте высоту
На этот раз проведите рулеткой от верха двери до низа по прямой линии — опять же, дважды проверьте, не включаете ли вы какие-либо дополнительные детали двери, такие как дверная петля. ваши измерения! Запишите номер.
Как и в случае с шириной, ваша дверь может быть не идеального прямоугольника, поэтому попробуйте измерить высоту в нескольких разных точках и используйте наибольшее число в качестве высоты двери.
Шаг 3 — Измерьте толщину
Проведите рулеткой от края одной стороны до края другой, чтобы определить толщину двери. Запишите число, затем измерьте дверной косяк на раме, чтобы убедиться, что они одинакового размера — возможно, вам понадобится знать обе цифры!
Можно просто измерить дверь, которую я заменяю?
Если у вас уже висит дверь, которую вы хотите заменить, то гораздо проще просто измерить эту дверь, а не проем ( Особенно, если вы новичок своими руками! ).Мы рекомендуем вам проверить дверь, чтобы убедиться, что она плотно прилегает к раме и не имеет проблем с трением о раму или зазорами по краям. Если вы не удовлетворены на 100% или хотите заменить рамы, просто измерьте проем в стене.
Если вместо этого вы измеряете проем
Проем, в который вы будете вставлять дверь, необходимо будет измерить, если у вас еще нет дверной подвески, которую можно измерить. Если это новый проем, то в нем может не быть установленной рамы, когда вы приходите измерять его, это обычно называют проемом «от кирпича к кирпичу».Если в ваш проем уже встроена рама, то вы измеряете «от рамы к раме». После того, как вы сделаете замеры, вы сможете решить, какой размер двери впишется в проем. Если вы все еще не уверены, просто позвоните нашим дружелюбным специалистам по дверям из нашей службы поддержки клиентов. Мы узнаем, какой размер вам нужен, и даже сможем обсудить с вами цены и доступность по телефону. Чтобы ускорить процесс, почему бы не нажать кнопку LiveChat в правом нижнем углу экрана в рабочее время.
Если вы уже знаете, то смотрите ниже наш список популярных внешних и внутренних размеров дверей .
Размеры межкомнатных дверей — стандартные размеры
Если у вас есть хороший бюджет и вы работаете с хорошим производителем дверей, межкомнатные двери размеров в вашем проекте будут именно тем, что вам нужно. Как и во всем, если вы хотите и можете себе позволить работать за пределами стандартных размеров двери , вы всегда можете это сделать. Это твой случай? Вам необходимо работать с нестандартными дверьми типоразмера ? Свяжитесь со Spigodoor и расскажите о своем проекте .Но мы знаем, что такая ситуация бывает нечасто. Обычно бюджетные ограничения требуют, чтобы вы использовали стандартные двери размером .
Наиболее распространенные размеры межкомнатных дверей или Стандартные размеры дверей , имеют общую высоту 2,030 мм и бывают различной ширины на выбор: 425, 525, 625, 725, 825 и 925 мм.
Эти двери размером применимы как к простым деревянным дверям и , так и к техническим дверям , а также к техническим дверям , которые могут потребоваться в других типах зданий: звукоизоляционные двери или звукоизолирующие двери , противопожарные двери или FR двери , специальные двери и т. Д.
В Spigodoor , подразделении Spigogroup, которое производит деревянных технических дверей , мы настаиваем на важности заказа дверей не на основе стандартных размеров двери на чертежах, а для измерения реальной высоты и ширины проема. каждой двери. В этом сообщении мы немного лучше объясним, как принять меры для размещения заказа и получения необходимых вам размеров межкомнатных дверей .
.
Если вам понравился этот пост о размерах межкомнатных дверей , вас также могут заинтересовать:
— (в Испании) FR 60 дверей, РФ 60 дверей и EI1 60 — двери C5. Они все одинаковые?
— Двери для школ, университетов, средних школ и детских садов: технические, акустические, противопожарные (RF) двери или двери с защитой от защемления
— Противопожарные двери для вашего проекта: вся необходимая информация в один клик
— Двери для гостиниц: противопожарные двери FR, акустические двери и технические двери из дерева на заказ
материалов — Как найти двери нестандартных размеров?
Проще говоря, по специальному заказу вы получаете двери нестандартных размеров.
При замене двери измеряйте размер дверной плиты непосредственно , а не рамы. Если у вас, например, 30-дюймовая дверь, это означает, что прямоугольный кусок дерева, которым является сама дверь, имеет ширину 30 дюймов (и, вероятно, 80 дюймов в высоту, что было стандартом в США на протяжении десятилетий, хотя это также может варьироваться). Для 30-дюймовой двери может потребоваться зазор 30,5 дюйма, измеренный от края до края рамы (примечание: это пример, я не знаю фактического зазора). Если вы попробуете установить 30.5-дюймовая дверная плита в раму с зазором ровно 30,5 дюймов, вы не сможете ее закрыть. Двери имеют толщину, и петлям нужно немного места для маневра, когда они распахивают дверь.
Ваш вопрос немного неоднозначен относительно того, что именно вы пытаетесь заменить, поэтому здесь я рассмотрю оба варианта.
Замена дверных плит: просто измерьте сами двери. Измерьте ширину, высоту, толщину, размеры и расположение навески, расположение защелки (та часть, которая выступает сбоку и удерживает ее закрытой) и т. Д.
Замена двери вместе с косяком, т.е. полностью навешенная дверь. Измерьте ширину и высоту дверной плиты, а также приблизительный размер. Для этого осторожно снимите дверную коробку, чтобы не повредить прилегающую территорию, и удалите любые другие препятствия, мешающие просмотру нижнего каркаса стены. Вы должны видеть край гипсокартона и, в зависимости от того, насколько плотно косяк к каркасу стены, шпильки, которые окружают дверь. Измерьте ширину и высоту проема.Я бы также измерил толщину стены: хотя стена 2×4 довольно стандартна, вы можете встретить более тонкие стены с «боковыми стойками» или даже стену 2×3. Это могло быть в случае старой постройки возле дверей туалета (в моем доме есть несколько таких).
Когда вы разговариваете с человеком, помогающим разместить специальный заказ, полезно, чтобы все из этих измерений были уже выполнены. «Привет, у меня есть дверная плита с размерами X на Y, грубая обработка — A на B. Мне нужна предварительно подвешенная дверь, которая поместится в этот проем.

Так, можно имитировать любые покрытия.




А вот при замене изделия необходимо учитывать эту особенность.